Maison neuve à
Pavilly (76570) Référence : SEMA9024_11

Prix du projet : Maison avec Terrain

prix 375 000 €

  • 7 pièces
  • 5 chambres
  • Surface maison 170 m2

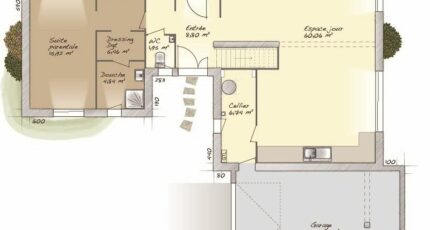
VENTE d'une maison de 7 pièces (170 m²) à Pavilly
MAISON 7 PIÈCES NEUVE - PROCHE DE ROUEN
En vente à 42 km de la Manche et à 19 km de Rouen, nous sommes ravis de vous présenter cette maison de 7 pièces de plain-pied de 170 m² et de 700 m² de terrain à Pavilly (76570).
Elle inclut cinq chambres, une cuisine et trois salles de bains. Cette maison est neuve.
Il y a plusieurs établissements scolaires (maternelle, élémentaire, primaire et collège) à moins de 10 minutes à pied. Côté transports, on trouve quatre gares à moins de 10 minutes en voiture. Les autoroutes A150 et A151 sont accessibles à moins de 8 km. Il y a des commerces, quatre boulangeries, un supermarché, deux poissonneries et un bureau de poste à proximité. Le marché Place des Halles anime les environs chaque jeudi matin.
Elle est proposée à l'achat pour 375 000 €.
Prenez contact avec Sébastien MASSON (06-23-38-14-17) pour toute question sur cette propriété. Maisons Balency Boos vous accompagne dans toutes vos démarches et à toutes les étapes de votre projet.

Annonce proposée par un Agent Commercial Partenaire.

Mentions légales

Terrain proposé par un partenaire foncier selon disponibilités et autorisation de publicité au prix de 45 000 €. Hors droit d'enregistrement et frais de notaire. Maison proposée, avec un contrat de construction de maison individuelle, dans le cadre de la loi du 19/12/1990, au prix de 330 000 € (Hors branchements et raccordements, papiers peints, peintures, revêtement de sol dans les chambres, qui sont chiffrés dans les travaux qui restent à charge du client. Tarif modifiable sans préavis). Étiquette énergie : A. Différents modèles disponibles pour ce terrain. Assurances et garanties du constructeur comprises (RC professionnelle, décennale, dommage ouvrage).

Contactez l'agence de Boos

02 35 80 66 66

    * Champs obligatoires

    Vos informations sont traitées par HEXAOM et transmises à un conseiller commercial qui vous contactera afin de répondre à votre demande. Les plans et images présentés sur notre site sont la propriété d’HEXAOM et ne peuvent pas être reproduits sans son accord. Pour retrouver notre politique de protection des données personnelles et exercer vos droits conformément à la « loi informatique et liberté » cliquez-ici.