Maison neuve à
Pavilly (76570) Référence : SEMA9024_7

Prix du projet : Maison avec Terrain

prix 239 000 €

  • 9 pièces
  • 5 chambres
  • Surface maison 124 m2

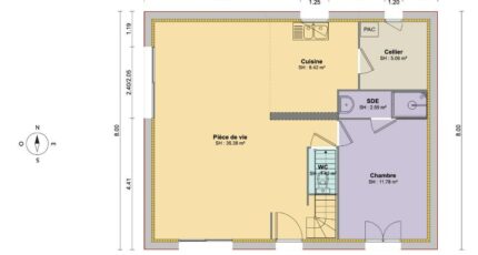
Pavilly : maison T9 (124 m²) à vendre
MAISON 9 PIÈCES NEUVE - PROCHE DE ROUEN
En vente à 42 km de la Manche et à quelques kilomètres de Rouen, Maisons Balency Boos vous propose cette maison de 9 pièces de 124 m² et de 700 m² de terrain à Pavilly (76570). Elle propose cinq chambres, une cuisine et trois salles de bains.
Il s'agit d'une maison de 2 niveaux. Elle est neuve.
Plusieurs établissements scolaires (maternelle, élémentaire, primaire et collège) sont implantés à moins de 10 minutes à pied. Niveau transports en commun, il y a quatre gares à moins de 10 minutes en voiture. Les autoroutes A150 et A151 sont accessibles à moins de 8 km. On trouve des commerces, quatre boulangeries, un supermarché, un bureau de poste et deux poissonneries à quelques minutes à peine. Le marché Place des Halles anime les environs tous les jeudis matin.
Son prix de vente est de 239 000 €.
Prenez contact avec Sébastien MASSON (06-23-38-14-17) pour obtenir de plus amples renseignements sur cette maison ou sur les démarches à suivre. Faites de vos projets immobiliers une réalité avec Maisons Balency Boos.

Annonce proposée par un Agent Commercial Partenaire.

Mentions légales

Terrain proposé par un partenaire foncier selon disponibilités et autorisation de publicité au prix de 45 000 €. Hors droit d'enregistrement et frais de notaire. Maison proposée, avec un contrat de construction de maison individuelle, dans le cadre de la loi du 19/12/1990, au prix de 194 000 € (Hors branchements et raccordements, papiers peints, peintures, revêtement de sol dans les chambres, qui sont chiffrés dans les travaux qui restent à charge du client. Tarif modifiable sans préavis). Étiquette énergie : A. Différents modèles disponibles pour ce terrain. Assurances et garanties du constructeur comprises (RC professionnelle, décennale, dommage ouvrage).

Contactez l'agence de Boos

02 35 80 66 66

    * Champs obligatoires

    Vos informations sont traitées par HEXAOM et transmises à un conseiller commercial qui vous contactera afin de répondre à votre demande. Les plans et images présentés sur notre site sont la propriété d’HEXAOM et ne peuvent pas être reproduits sans son accord. Pour retrouver notre politique de protection des données personnelles et exercer vos droits conformément à la « loi informatique et liberté » cliquez-ici.