Maison neuve à
Poligny (77167) Référence : AD2476195_4

Prix du projet : Maison avec Terrain

prix 256 700 €

  • 5 pièces
  • 3 chambres
  • Surface maison 90 m2

VENTE : maison de 5 pièces (90 m²) à Poligny
EMPLACEMENT PRIVILÉGIÉ - MAISON 5 PIÈCES NEUVE
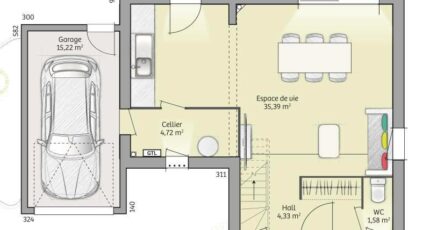
Proche de la gare de Bagneaux-sur-Loing (Paris à 1 h par le Transilien R), Maisons France Confort Nemours vous présente en vente, bénéficiant d'un emplacement privilégié dans Poligny (77167), cette maison de 5 pièces de 90 m² et de 750 m² de terrain. Elle est composée de trois chambres, d'une cuisine et d'une salle de bains.
Il s'agit d'une maison de 2 niveaux. Elle est neuve.
Cette maison est située dans un secteur recherché. On y trouve une école primaire. Niveau transports, on trouve quatre gares à moins de 10 minutes en voiture.
Son prix de vente est de 256 700 €.
Contactez Anne DELOHEN (06-30-93-26-67) pour obtenir de plus amples renseignements sur la maison ou sur les démarches à suivre. Maisons France Confort Nemours est là pour vous accompagner dans tous vos projets immobiliers.

Annonce proposée par un Agent Commercial Partenaire.

Mentions légales

Terrain proposé par un partenaire foncier selon disponibilités et autorisation de publicité au prix de 72 960 €. Hors droit d'enregistrement et frais de notaire. Terrain + Maison proposés au prix de 256 700 € (Hors branchements et raccordements, papiers peints, peintures, revêtement de sol dans les chambres. Tarif modifiable sans préavis). Etiquette énergie : A. Différents modèles disponibles pour ce terrain. Assurances et garanties du constructeur (RC professionnelle, décennale, dommage ouvrage, garantie de remboursement de l'acompte, livraison à prix et délai convenu) : https://www.maisons-france-confort.fr/mentions-legales/. HEXAOM Services est enregistré auprès de l'ORIAS en tant que Courtier en financement, Niveau 1, sous le numéro 14001345.

Contactez l'agence de Nemours

01 64 28 58 32

    * Champs obligatoires

    Vos informations sont traitées par HEXAOM et transmises à un conseiller commercial qui vous contactera afin de répondre à votre demande. Les plans et images présentés sur notre site sont la propriété d’HEXAOM et ne peuvent pas être reproduits sans son accord. Pour retrouver notre politique de protection des données personnelles et exercer vos droits conformément à la « loi informatique et liberté » cliquez-ici.