Maison neuve à
Pornic
(44210) Référence :
VC2291649_2
Prix du projet : Maison avec Terrain
prix 610 000 €
- 4 pièces
- 3 chambres
- Surface maison 107 m2
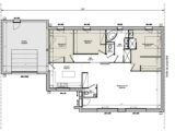
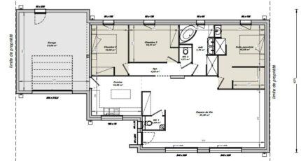
VENTE d'une maison de 4 pièces (107 m²) à Pornic
IDÉALEMENT SITUÉE - MAISON 4 PIÈCES NEUVE
À vendre sur le littoral atlantique et à deux pas de Saint-Nazaire, nous sommes heureux de vous présenter cette maison de 4 pièces de plain-pied de 107 m², idéalement située dans Pornic (44210).
Elle inclut trois chambres, une cuisine et une salle de bains. La maison est neuve.
Le terrain de la propriété est de 602 m².
Cette maison se situe dans un quartier prisé. Cinq établissements scolaires se trouvent à moins de 10 minutes . Niveau transports, il y a la gare Pornic dans un rayon de 1 km. On trouve un port de plaisance, des commerces, des boulangeries, un supermarché, un bureau de poste et trois poissonneries dans les environs.
Elle est à vendre pour la somme de 610 000 €.
Contactez notre agence (Vincent COUCHAUX : 06-74-86-07-98) pour toute question sur la maison, sur les modalités de vente et sur les démarches à suivre. Faites de vos projets immobiliers une réalité avec Maisons Tradilignes Pornic.
Mentions légales
Terrain proposé par un partenaire foncier selon disponibilités et autorisation de publicité au prix de 350 000 €. Hors droit d'enregistrement et frais de notaire. Maison proposée, avec un contrat de construction de maison individuelle, dans le cadre de la loi du 19/12/1990, au prix de 260 000 € (Hors branchements et raccordements, papiers peints, peintures, revêtement de sol dans les chambres, qui sont chiffrés dans les travaux qui restent à charge du client. Tarif modifiable sans préavis). Étiquette énergie : A. Différents modèles disponibles pour ce terrain. Assurances et garanties du constructeur comprises (RC professionnelle, décennale, dommage ouvrage).Agence Maisons Tradilignes de Pornic (44210)
- Téléphone :
- 02 40 82 59 91
- Adressse :
- 46 rue du Général de Gaulle
44210 Pornic, France
