Maison neuve à
Pronleroy
(60190) Référence :
FBpronleroy65_2
Prix du projet : Maison avec Terrain
prix 258 000 €
- 5 pièces
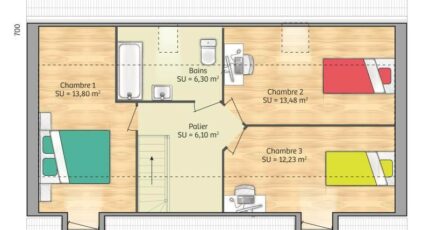
- 3 chambres
- Surface maison 80 m2
VENTE : maison de 5 pièces (80 m²) à Pronleroy
IDÉALEMENT SITUÉE - MAISON 5 PIÈCES NEUVE
À vendre : à deux pas de Compiègne, idéalement située dans Pronleroy (60190), nous sommes ravis de vous présenter cette maison de 5 pièces de 80 m² et de 720 m² de terrain.
Cette maison compte 2 niveaux. Elle propose trois chambres, une cuisine et une salle de bains. Cette maison est neuve.
La maison est située dans un quartier attractif. Côté transports, on trouve cinq gares à moins de 10 minutes en voiture. L'autoroute A1 et la nationale N31 sont accessibles à moins de 14 km. Il y a une bibliothèque à proximité.
Elle est proposée à l'achat pour 258 000 €.
Prenez contact avec notre agence (BONELLO Fabrice : 06-09-50-50-09) pour plus de renseignements sur la maison.
Mentions légales
Terrain proposé par un partenaire foncier selon disponibilités et autorisation de publicité au prix de 65 000 €. Hors droit d'enregistrement et frais de notaire. Terrain + Maison proposés au prix de 193 000 € (Hors branchements et raccordements, papiers peints, peintures, revêtement de sol dans les chambres. Tarif modifiable sans préavis). Etiquette énergie : A. Différents modèles disponibles pour ce terrain. Assurances et garanties du constructeur (RC professionnelle, décennale, dommage ouvrage, garantie de remboursement de l'acompte, livraison à prix et délai convenu) : https://www.maisons-france-confort.fr/mentions-legales/. HEXAOM Services est enregistré auprès de l'ORIAS en tant que Courtier en financement, Niveau 1, sous le numéro 14001345.Agence Maisons France Confort de Beauvais (60000)
- Téléphone :
- 03 44 04 40 04
- Adressse :
- 42 rue Pierre Jacoby
60000 Beauvais, France
