Maison neuve à
Puisserguier
(34620) Référence :
AB2387719_6
Prix du projet : Maison avec Terrain
prix 259 000 €
- 4 pièces
- 3 chambres
- Surface maison 101 m2
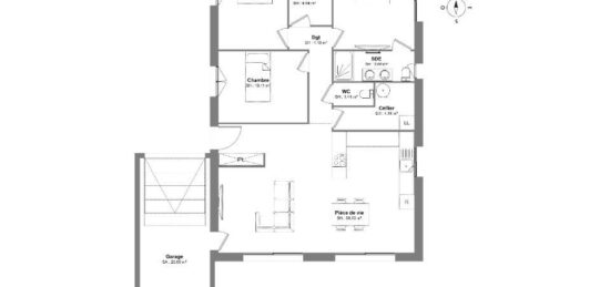
PROJET DE CONSTRUCTION - Maison de 4 pièces (101 m²) à Puisserguier
PROCHE DE BÉZIERS - MAISON 4 PIÈCES
A 28 km de la mer Méditerranée et à quelques kilomètres de Béziers, nous sommes heureux de vous présenter à Puisserguier (34620), cette maison de 4 pièces de plain-pied de 101 m² et de 453 m² de terrain.
Conçue de plain-pied, elle est composée de trois chambres, d'une cuisine, d'un cellier et de deux salles de bains + GARAGE.
(Carrelage inclus dans toutes les pièces / Raccordements inclus / Gainable compris).
Il y a l'École Primaire Font Claire dans la commune. Les autoroutes A9 et A75 sont accessibles à moins de 17 km. On trouve une bibliothèque dans les environs.
Elle est proposée à l'achat pour 259 000 €.
Pour plus d'information contacter (Anthony BALLESTER : 06-27-21-51-55) Maisons de Manon Béziers pour échanger sur votre projet et réaliser une étude gratuite. (Plan personnalisable). Tous nos ouvrages sont réalisés sur-mesure en fonction de vos attentes et de nos échanges avec vous ainsi que dans le respect de la règlementation RE 2020. Ce projet comporte les garanties suivantes: Contrat de construction CCMI. Dommage/Ouvrage. RC Garantie décennale. Parfaite achèvement. Etude de sol G2. Prix et délais convenu. Garantie de livraison. Garantie financière Pour votre tranquillité nous nous occupons de toutes les formalités administratives.
Mentions légales
Terrain proposé par un partenaire foncier selon disponibilités et autorisation de publicité au prix de 83 000 €. Hors droit d'enregistrement et frais de notaire. Terrain + Maison proposés au prix de 176 000 € (Hors branchements et raccordements, papiers peints, peintures, revêtement de sol dans les chambres. Tarif modifiable sans préavis). Etiquette énergie : A. Différents modèles disponibles pour ce terrain. Assurances et garanties du constructeur (RC professionnelle, décennale, dommage ouvrage, garantie de remboursement de l'acompte, livraison à prix et délai convenu) : https://www.maisons-de-manon.fr/informations-legales/. HEXAOM Services est enregistré auprès de l'ORIAS en tant que Courtier en financement, Niveau 1, sous le numéro 14001345.Agence Maisons de Manon de Béziers (34500)
- Téléphone :
- 04 67 00 87 30
- Adressse :
- 66, avenue Pierre Verdier
34500 Béziers, France