Maison neuve à
Quincy (18120) Référence : DP2260266_8

Prix du projet : Maison avec Terrain

prix 202 000 €

  • 6 pièces
  • 4 chambres
  • Surface maison 109 m2

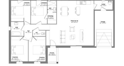
Maison de 6 pièces (109 m²) à vendre à Quincy
MAISON 6 PIÈCES NEUVE - PROCHE DE BOURGES
À vendre : à 19 km de Bourges, nous vous présentons cette maison de 6 pièces de plain-pied de 109 m² à Quincy (18120). Elle propose quatre chambres, une cuisine et deux salles de bains.
Le terrain de la propriété s'étend sur 1 205 m².
La maison est neuve.
Il y a une école primaire dans le quartier. Côté transports en commun, on trouve quatre gares à moins de 10 minutes en voiture. Il y a un accès à l'autoroute A71 à 9 km. Il y a un tennis et une boulangerie à quelques minutes de la maison.
Elle est proposée à l'achat pour 202 000 €.
Contactez notre agence (David POUPET : 02-48-50-26-25) pour plus de renseignements sur cette maison ou sur les modalités de vente. Maisons Bruno Petit MJB Bourges vous accompagne dans tous vos projets immobiliers et dans toutes vos démarches.

Mentions légales

Terrain proposé par un partenaire foncier selon disponibilités et autorisation de publicité au prix de 24 000 €. Hors droit d'enregistrement et frais de notaire. Maison proposée, avec un contrat de construction de maison individuelle, dans le cadre de la loi du 19/12/1990, au prix de 178 000 € (Hors branchements et raccordements, papiers peints, peintures, revêtement de sol dans les chambres, qui sont chiffrés dans les travaux qui restent à charge du client. Tarif modifiable sans préavis). Étiquette énergie : A. Différents modèles disponibles pour ce terrain. Assurances et garanties du constructeur comprises (RC professionnelle, décennale, dommage ouvrage).

Contactez l'agence de Bourges

02 48 50 26 25

    * Champs obligatoires

    Vos informations sont traitées par HEXAOM et transmises à un conseiller commercial qui vous contactera afin de répondre à votre demande. Les plans et images présentés sur notre site sont la propriété d’HEXAOM et ne peuvent pas être reproduits sans son accord. Pour retrouver notre politique de protection des données personnelles et exercer vos droits conformément à la « loi informatique et liberté » cliquez-ici.