Maison neuve à
Quincy-Voisins
(77860) Référence :
AR2356322_1
Prix du projet : Maison avec Terrain
prix 321 000 €
- 5 pièces
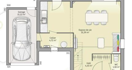
- 3 chambres
- Surface maison 90 m2
Quincy-Voisins : maison de 5 pièces (90 m²) en vente
MAISON 5 PIÈCES NEUVE - PROCHE D'AULNAY-SOUS-BOIS
Au pied du Transilien P (gare d'Esbly, 30 min de Paris), nous sommes ravis de vous proposer cette maison de 5 pièces de 90 m² et de 470 m² de terrain à Quincy-Voisins (77860). Son intérieur est composé de trois chambres, d'une cuisine et d'une salle de bains.
C'est une maison de 2 niveaux. Elle est neuve.
Des écoles maternelles et élémentaires sont implantées à moins de 10 minutes à pied. Niveau transports, il y a la ligne de RER A (Chessy-Marne-La-Vallée) ainsi que huit gares à moins de 10 minutes en voiture. On trouve un tennis, une bibliothèque, une boulangerie, trois commerces, une supérette, une épicerie et une boucherie-charcuterie dans les environs.
Elle est à vendre pour la somme de 321 000 €.
N'hésitez pas à prendre contact avec Thomas ROUSSEL TOUATI (06-67-03-68-69) pour plus de renseignements sur cette maison. Donnez vie à vos projets immobiliers avec Maisons France Confort Magny-le-Hongre.
Annonce proposée par un Agent Commercial Partenaire.
Mentions légales
Terrain proposé par un partenaire foncier selon disponibilités et autorisation de publicité au prix de 159 000 €. Hors droit d'enregistrement et frais de notaire. Maison proposée, avec un contrat de construction de maison individuelle, dans le cadre de la loi du 19/12/1990, au prix de 162 000 € (Hors branchements et raccordements, papiers peints, peintures, revêtement de sol dans les chambres, qui sont chiffrés dans les travaux qui restent à charge du client. Tarif modifiable sans préavis). Étiquette énergie : A. Différents modèles disponibles pour ce terrain. Assurances et garanties du constructeur comprises (RC professionnelle, décennale, dommage ouvrage).Agence Maisons France Confort de Magny-le-Hongre (77700)
- Téléphone :
- 01 84 80 92 96
- Adressse :
- 11 rue de Courtalin
77700 Magny-le-Hongre, France
