Maison neuve à
Quincy-Voisins
(77860) Référence :
AC2386582_1
Prix du projet : Maison avec Terrain
prix 344 558 €
- 5 pièces
- 3 chambres
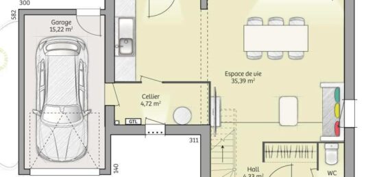
- Surface maison 89 m2
🏡 À SAISIR : Maison neuve à prix attractif avec prestations de qualité à Quincy Voisins
Vous rêvez de devenir propriétaire sans compromis sur le confort et la qualité ? Maisons Balency, constructeur renommé du groupe Hexaom, leader de la construction en France, vous propose ce projet de maison neuve alliant prix accessible et prestations soignées.
📍 Emplacement privilégié
-Située dans un quartier résidentiel calme et recherché, cette maison neuve vous offre un cadre de vie agréable, tout en étant proche des écoles, commerces et transports.
🏠 Un projet bien pensé, conçu pour votre confort
-Surface habitable optimisée : 89 m², avec une disposition intelligente pour un maximum d'espace et de fonctionnalité
-Jusqu'à 3 chambres lumineuses dont une suite parentale avec dressing et salle d'eau privative, idéales pour une famille
-Séjour spacieux et baigné de lumière, ouvert sur une cuisine moderne et conviviale
-Salle de bain personnalisable : baignoire ou douche selon vos envies
-Terrain de 663 m², parfait pour un jardin, une terrasse ou un espace détente
-Garage inclus
✨ Des prestations signées MAISONS BALENCY pour un confort durable
✔ Construction réalisée par un expert reconnu : Maisons Balency, marque du groupe Hexaom, fort de plus de 100 ans d'expérience
✔ Matériaux de qualité et finitions soignées, pour une maison moderne et durable
✔ Isolation haute performance (RE 2020), garantissant des économies d'énergie et un confort thermique optimal
✔ Menuiseries en aluminium ou PVC haut de gamme, avec double vitrage isolant
✔ Personnalisation possible : Large choix de couleurs, revêtements et équipements pour une maison qui vous ressemble
💡 Pourquoi choisir ce projet ?
✅ Un excellent rapport qualité/prix, avec des prestations habituellement réservées aux gammes supérieures
✅ Un constructeur de confiance, avec l'expertise et le savoir-faire de Maisons Balency (Hexaom)
✅ Un
Mentions légales
Terrain proposé par un partenaire foncier selon disponibilités et autorisation de publicité au prix de 180 000 €. Hors droit d'enregistrement et frais de notaire. Terrain + Maison proposés au prix de 164 558 € (Hors branchements et raccordements, papiers peints, peintures, revêtement de sol dans les chambres. Tarif modifiable sans préavis). Etiquette énergie : A. Différents modèles disponibles pour ce terrain. Assurances et garanties du constructeur (RC professionnelle, décennale, dommage ouvrage, garantie de remboursement de l'acompte, livraison à prix et délai convenu) : https://www.maisons-balency.fr/informations-legales/. HEXAOM Services est enregistré auprès de l'ORIAS en tant que Courtier en financement, Niveau 1, sous le numéro 14001345.Agence Maisons Balency de Mareuil-lès-Meaux (77100)
- Téléphone :
- 01 60 38 39 79
- Adressse :
- 19 rue de la Hayette
77100 Mareuil-lès-Meaux, France
