Maison neuve à
Rampan
(50000) Référence :
JS2416736_6
Prix du projet : Maison avec Terrain
prix 260 015 €
- 7 pièces
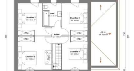
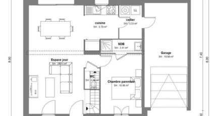
- 5 chambres
- Surface maison 102 m2
VENTE : maison F7 (102 m²) à Saint-Georges-Montcocq
Idéalement située - À découvrir à Saint-Georges-Montcocq (50000) : maison neuve 7 pièces à vendre. 2 niveaux, surface de 102 m² et 1 059 m² de terrain. Son intérieur compte cinq chambres, une cuisine et deux salles de bains.
Proche gares (Saint-Lô et Pont-Hébert), écoles, tennis, bowling, boulangerie, commerces, épicerie et boucherie-charcuterie. Nationale N174 accessible à 4 km.
Cette maison de 7 pièces est proposée à l'achat pour 260 015 €.
N'hésitez pas à prendre contact avec notre agence (HUE Emilie : 06-29-81-46-66) pour plus d'informations sur la maison, sur les démarches à suivre ou sur les modalités de vente. Maisons France Confort Bayeux vous accompagne dans tous vos projets immobiliers et à toutes les étapes de votre projet.
Annonce proposée par un Agent Commercial Partenaire.
Mentions légales
Terrain proposé par un partenaire foncier selon disponibilités et autorisation de publicité au prix de 90 015 €. Hors droit d'enregistrement et frais de notaire. Terrain + Maison proposés au prix de 260 015 € (Hors branchements et raccordements, papiers peints, peintures, revêtement de sol dans les chambres. Tarif modifiable sans préavis). Etiquette énergie : A. Différents modèles disponibles pour ce terrain. Assurances et garanties du constructeur (RC professionnelle, décennale, dommage ouvrage, garantie de remboursement de l'acompte, livraison à prix et délai convenu) : https://www.maisons-france-confort.fr/mentions-legales/. HEXAOM Services est enregistré auprès de l'ORIAS en tant que Courtier en financement, Niveau 1, sous le numéro 14001345.Agence Maisons France Confort de Bayeux (14400)
- Téléphone :
- 02 31 51 20 91
- Adressse :
- 2, rue Saint Loup
14400 Bayeux, France
