Maison neuve à
Rampan
(50000) Référence :
JS2416736_7
Prix du projet : Maison avec Terrain
prix 280 015 €
- 7 pièces
- 5 chambres
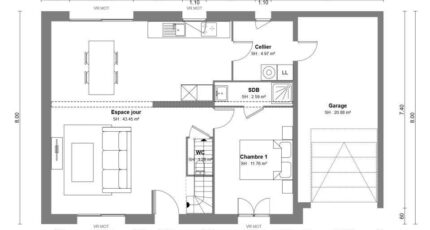
- Surface maison 124 m2
Maison de 7 pièces (124 m²) en vente à Saint-Georges-Montcocq
Idéalement située - À Saint-Georges-Montcocq (50000), maison neuve à vendre de 7 pièces, 2 niveaux, 124 m² de surface et 1 059 m² de terrain. Son intérieur se divise en cinq chambres, une cuisine et trois salles de bains.
Proche gares (Saint-Lô et Pont-Hébert), écoles, tennis, bowling, boulangerie, commerces, épicerie et boucherie-charcuterie. Nationale N174 accessible à 4 km.
Cette maison de 7 pièces est à vendre pour la somme de 280 015 €.
N'hésitez pas à prendre contact avec notre agence (HUE Emilie : 06-29-81-46-66) pour tout renseignement sur la maison ou sur les modalités de vente. Maisons France Confort Bayeux vous accompagne dans tous vos projets immobiliers et dans toutes vos démarches.
Annonce proposée par un Agent Commercial Partenaire.
Mentions légales
Terrain proposé par un partenaire foncier selon disponibilités et autorisation de publicité au prix de 90 015 €. Hors droit d'enregistrement et frais de notaire. Terrain + Maison proposés au prix de 280 015 € (Hors branchements et raccordements, papiers peints, peintures, revêtement de sol dans les chambres. Tarif modifiable sans préavis). Etiquette énergie : A. Différents modèles disponibles pour ce terrain. Assurances et garanties du constructeur (RC professionnelle, décennale, dommage ouvrage, garantie de remboursement de l'acompte, livraison à prix et délai convenu) : https://www.maisons-france-confort.fr/mentions-legales/. HEXAOM Services est enregistré auprès de l'ORIAS en tant que Courtier en financement, Niveau 1, sous le numéro 14001345.Agence Maisons France Confort de Bayeux (14400)
- Téléphone :
- 02 31 51 20 91
- Adressse :
- 2, rue Saint Loup
14400 Bayeux, France
