Maison neuve à
Roclincourt
(62223) Référence :
VD2353184_1
Prix du projet : Maison avec Terrain
prix 363 520 €
- 6 pièces
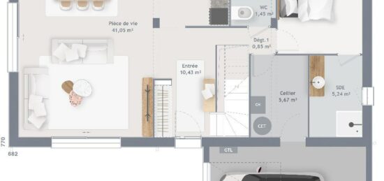
- 4 chambres
- Surface maison 135 m2
VENTE d'une maison de 6 pièces (135 m²) à Roclincourt
MAISON 6 PIÈCES NEUVE - PROCHE ARRAS
À vendre : à cinq kilomètres d'Arras, Maisons France Confort Arras vous présente cette maison de 6 pièces de plain-pied de 135 m² et de 712 m² de terrain à Roclincourt (62223).
Elle comporte quatre chambres, une cuisine et deux salles de bains. La maison est neuve.
L'École Primaire Jean-Yves Cousteau rpi 74 est implantée à moins de 10 minutes à pied. Niveau transports en commun, on trouve sept gares à moins de 10 minutes en voiture. La nationale N17 est accessible à 1 km. Il y a une bibliothèque dans les environs.
Elle est à vendre pour la somme de 363 520 €.
N'hésitez pas à prendre contact avec notre agence (Vincent DEDOURGES : O6-23-83-56-57) pour plus de renseignements sur cette maison, sur les modalités de vente ou sur les démarches à suivre. Concrétisez vos projets immobiliers avec Maisons France Confort Arras.
Mentions légales
Terrain proposé par un partenaire foncier selon disponibilités et autorisation de publicité au prix de 98 000 €. Hors droit d'enregistrement et frais de notaire. Maison proposée, avec un contrat de construction de maison individuelle, dans le cadre de la loi du 19/12/1990, au prix de 265 520 € (Hors branchements et raccordements, papiers peints, peintures, revêtement de sol dans les chambres, qui sont chiffrés dans les travaux qui restent à charge du client. Tarif modifiable sans préavis). Étiquette énergie : A. Différents modèles disponibles pour ce terrain. Assurances et garanties du constructeur comprises (RC professionnelle, décennale, dommage ouvrage).Agence Maisons France Confort de Arras (62000)
- Téléphone :
- 03 21 60 95 24
- Adressse :
- 11 ter boulevard Schuman
62000 Arras, France
