Maison neuve à
Roquevaire
(13360) Référence :
PB2334730_2
Prix du projet : Maison avec Terrain
prix 499 700 €
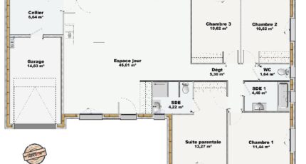
- 5 pièces
- 4 chambres
- Surface maison 113 m2
EMPLACEMENT PRIVILÉGIÉ - PROCHE DE MARSEILLE
De style résolument contemporain, votre maison de plain pied avec ses 3 belles chambres, en plus de sa suite parentale, son séjour lumineux et ses prestations de qualité, le tout aux dernières normes thermiques en vigueur, saura vous séduire vous et votre famille.
Le grand garage accolé au cellier contribuera également à votre confort de vivre.
Le terrain de 329 m², à quelques minutes de la mer Méditerranée et à deux pas de Marseille, bénéficie d'un emplacement privilégié dans Roquevaire (13360).
Avec son bel environnement d'espaces verts, il bénéficie d'une exposition idéale.
Dans un secteur prisé, ce terrain est proche des écoles et des commerces.
Des écoles de tous types se trouvent à moins de 10 minutes en voiture, tout comme 1 crèche à moins de 10 minutes à pied.
Côté transports, il y a les gares d'Aubagne et de La Penne-sur-Huveaune à quelques minutes.
Quatre autoroutes sont accessibles rapidement.
On trouve toutes les commodités à proximité ainsi que 2 marchés typiques qui animent les environs.
Le budget de votre projet terrain plus maison est de 499.700 euros (hors taxes et frais annexes).
Contactez notre agence (Pascal BAK : O6-48-58-67-14) pour obtenir de plus amples informations sur ce terrain, vu avec l'aide de nos partenaires fonciers.
Les Maisons France Confort de Cabriès vous accompagne dans tous vos projets immobiliers et à toutes les étapes de votre projet.
Mentions légales
Terrain proposé par un partenaire foncier selon disponibilités et autorisation de publicité au prix de 250 000 €. Hors droit d'enregistrement et frais de notaire. Terrain + Maison proposés au prix de 249 700 € (Hors branchements et raccordements, papiers peints, peintures, revêtement de sol dans les chambres. Tarif modifiable sans préavis). Etiquette énergie : A. Différents modèles disponibles pour ce terrain. Assurances et garanties du constructeur (RC professionnelle, décennale, dommage ouvrage, garantie de remboursement de l'acompte, livraison à prix et délai convenu) : https://www.maisons-france-confort.fr/mentions-legales/. HEXAOM Services est enregistré auprès de l'ORIAS en tant que Courtier en financement, Niveau 1, sous le numéro 14001345.Agence Maisons France Confort de Cabriès (13480)
- Téléphone :
- 04 42 02 85 99
- Adressse :
- Villa 07 Expobat - Plan de Campagne
13480 Cabriès, France
