Maison neuve à
Routot (27350) Référence : SEMA9029_4

Prix du projet : Maison avec Terrain

prix 220 000 €

  • 6 pièces
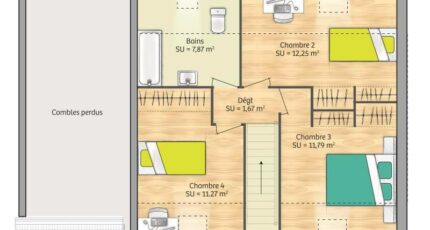
  • 4 chambres
  • Surface maison 89 m2

VENTE : maison de 6 pièces (89 m²) à Routot
PROCHE DE ROUEN - MAISON 6 PIÈCES NEUVE
À 29 km de la Manche et à deux pas de Rouen, nous sommes ravis de vous présenter cette maison de 6 pièces de 89 m² à Routot (27350). Son intérieur est composé de quatre chambres, d'une cuisine et d'une salle de bains.
Le terrain du bien est de 1 600 m².
Cette maison possède 2 niveaux. Elle est neuve.
Il y a le Collège le Roumois à moins de 10 minutes à pied. Les autoroutes A13 et A131 sont accessibles à moins de 10 km. On trouve deux tennis, une boulangerie, un commerce, un supermarché et une épicerie dans les environs. Ne manquez pas le marché Place Leclerc tous les mercredis matin.
Son prix de vente est de 220 000 €.
Contactez notre agence (Sébastien MASSON : 06-23-38-14-17) pour obtenir de plus amples renseignements sur cette maison, sur les démarches à suivre ou sur les modalités de vente.

Annonce proposée par un Agent Commercial Partenaire.

Mentions légales

Terrain proposé par un partenaire foncier selon disponibilités et autorisation de publicité au prix de 65 000 €. Hors droit d'enregistrement et frais de notaire. Maison proposée, avec un contrat de construction de maison individuelle, dans le cadre de la loi du 19/12/1990, au prix de 155 000 € (Hors branchements et raccordements, papiers peints, peintures, revêtement de sol dans les chambres, qui sont chiffrés dans les travaux qui restent à charge du client. Tarif modifiable sans préavis). Étiquette énergie : A. Différents modèles disponibles pour ce terrain. Assurances et garanties du constructeur comprises (RC professionnelle, décennale, dommage ouvrage).

Contactez l'agence de Boos

02 35 80 66 66

    * Champs obligatoires

    Vos informations sont traitées par HEXAOM et transmises à un conseiller commercial qui vous contactera afin de répondre à votre demande. Les plans et images présentés sur notre site sont la propriété d’HEXAOM et ne peuvent pas être reproduits sans son accord. Pour retrouver notre politique de protection des données personnelles et exercer vos droits conformément à la « loi informatique et liberté » cliquez-ici.