Maison neuve à
Russy-Bémont
(60117) Référence :
XDSS2293961_2
Prix du projet : Maison avec Terrain
prix 330 000 €
- 6 pièces
- 4 chambres
- Surface maison 105 m2
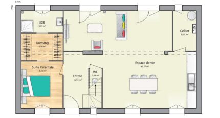
Maison de type Rez de chaussée + combles aménagés, normes RE 2020, située à RUSSY-BEMONT, sur un terrain de 466 m² viabilisé en partie.
Cette maison RE 2020 , dispose de 4 chambres avec rangements intégrés dont 1 suite parentale au rdc avec dressing et sde , séjour carrelé ,1 salle d'eau équipées ,cellier et entrée séparée, packs alarme et domotique, baie aluminium, volets roulants centralisés et intégrés à la maçonnerie.
Plans 100% personnalisables et modifiables .
Accompagnement intégral : Financement , étude technique du terrain , gestion administrative .
Frais annexes ( raccordements , viabilisation , puisards, enlèvements des terres excédentaires , chemin d'accès )inclus dans le prix de cette annonce .
Contactez moi pour une étude gratuite .
Rendez vous en agence ou à votre domicile .
M. DOS SANTOS XAVIER
06 16 27 53 27
Mentions légales
Terrain proposé par un partenaire foncier selon disponibilités et autorisation de publicité au prix de 93 000 €. Hors droit d'enregistrement et frais de notaire. Maison proposée, avec un contrat de construction de maison individuelle, dans le cadre de la loi du 19/12/1990, au prix de 237 000 € (Hors branchements et raccordements, papiers peints, peintures, revêtement de sol dans les chambres, qui sont chiffrés dans les travaux qui restent à charge du client. Tarif modifiable sans préavis). Étiquette énergie : A. Différents modèles disponibles pour ce terrain. Assurances et garanties du constructeur comprises (RC professionnelle, décennale, dommage ouvrage).Agence Maisons France Confort de Compiègne (60200)
- Téléphone :
- 03 44 86 81 34
- Adressse :
- 47, cours Guynemer
60200 Compiègne, France
