Maison neuve à
Saint-Aubin-de-Médoc
(33160) Référence :
JR2267006_2
Prix du projet : Maison avec Terrain
prix 367 800 €
- 3 pièces
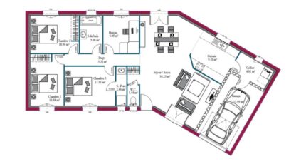
- 2 chambres
- Surface maison 107 m2
VENTE d'une maison F3 (107 m²) à Saint-Aubin-de-Médoc
QUARTIER RECHERCHÉ - MAISON 3 PIÈCES NEUVE
En vente : localisée à 20 km de la côte atlantique et à quelques kilomètres de Bordeaux, ayez le coup de coeur pour cette maison de 3 pièces de plain-pied de 107 m² et de 900 m² de terrain, dans un quartier prisé de Saint-Aubin-de-Médoc (33160). Elle comporte deux chambres, une cuisine et une salle de bains.
La maison est neuve.
Cette maison se situe dans un secteur recherché. On trouve l'École Élementaire Moliere, l'École Maternelle Charles Perrault et l'École Jean de la Fontaine à moins de 10 minutes à pied et deux structures d'accueil pour les tout-petits. Niveau transports, il y a les gares Blanquefort, Parempuyre et Bruges à moins de 10 minutes en voiture. L'autoroute A630 est accessible à 8 km. On trouve un tennis, des commerces, deux boulangeries, deux boucheries-charcuteries, une épicerie et un bureau de poste à proximité du bien. Ne manquez pas le marché Place de l'église chaque vendredi matin.
Son prix de vente est de 367 800 €.
N'hésitez pas à prendre contact avec notre agence (Jonathan RAIMBAULT : 07-69-4O-40-06) pour plus d'informations sur la maison, sur les démarches à suivre ou sur les modalités de vente. Maisons de la Côte Atlantique Bordeaux est là pour vous accompagner dans tous vos projets immobiliers.
Agence Maisons de la Côte Atlantique de Bordeaux (33000)
- Téléphone :
- 05 57 19 56 19
- Adressse :
- Homexpo - Pavillon HORIZON
33000 Bordeaux, France
