Maison neuve à
Saint-Aubin-de-Médoc
(33160) Référence :
JR2267006_3
Prix du projet : Maison avec Terrain
prix 438 600 €
- 7 pièces
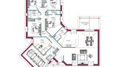
- 4 chambres
- Surface maison 146 m2
VENTE : maison T7 (146 m²) à Saint-Aubin-de-Médoc
QUARTIER RECHERCHÉ - MAISON 7 PIÈCES NEUVE
À 20 km de la côte atlantique et à deux pas de Bordeaux, notre agence Maisons de la Côte Atlantique Bordeaux est ravie de vous proposer en vente, dans un secteur convoité de Saint-Aubin-de-Médoc (33160), cette maison de 7 pièces de plain-pied de 146 m² et de 900 m² de terrain.
Conçue de plain-pied, elle se divise en quatre chambres, une cuisine et deux salles de bains. Cette maison est neuve.
La maison se situe dans un quartier recherché. Il y a l'École Élementaire Moliere, l'École Maternelle Charles Perrault et l'École Jean de la Fontaine à moins de 10 minutes à pied et deux crèches. Côté transports, on trouve les gares Blanquefort, Parempuyre et Bruges à moins de 10 minutes en voiture. Il y a un accès à l'autoroute A630 à 8 km. Il y a un tennis, des commerces, deux boulangeries, deux boucheries-charcuteries, une épicerie et un bureau de poste à proximité du bien. Le marché Place de l'église anime les environs tous les vendredis matin.
Elle est à vendre pour la somme de 438 600 €.
N'hésitez pas à prendre contact avec notre constructeur (Jonathan RAIMBAULT : 07-69-4O-40-06) pour obtenir de plus amples renseignements sur la propriété ou sur les démarches à suivre. Concrétisez vos projets immobiliers avec Maisons de la Côte Atlantique Bordeaux.
Agence Maisons de la Côte Atlantique de Bordeaux (33000)
- Téléphone :
- 05 57 19 56 19
- Adressse :
- Homexpo - Pavillon HORIZON
33000 Bordeaux, France
