Maison neuve à
Saint-Augustin-des-Bois (49170) Référence : RS2287750_1

Prix du projet : Maison avec Terrain

prix 265 000 €

  • 5 pièces
  • 3 chambres
  • Surface maison 85 m2

VENTE : maison de 5 pièces (85 m²) à Saint-Augustin-des-Bois
MAISON 5 PIÈCES NEUVE - PROCHE D'ANGERS
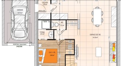
À vendre : localisée à 18 km d'Angers, nous vous proposons cette maison de 5 pièces de 85 m² et de 564 m² de terrain à Saint-Augustin-des-Bois (49170). Son intérieur offre trois chambres, une cuisine et deux salles de bains.
Cette maison possède 2 niveaux. Elle est neuve.
L'École Primaire Privée Sainte Monique et l'École Primaire Publique Albert Jacquard sont implantées à moins de 10 minutes à pied. Niveau transports, il y a la gare Champtocé-sur-Loire à moins de 10 minutes en voiture. L'autoroute A11 est accessible à 4 km. On trouve une bibliothèque et une épicerie à quelques minutes.
Son prix de vente est de 265 000 €.
Contactez Roman SALAS (tél : 02-41-77-17-17) pour obtenir de plus amples renseignements sur la maison ou sur les démarches à suivre. Maisons Bernard Jambert Angers vous accompagne à toutes les étapes de l'achat et dans tous vos projets immobiliers.

Mentions légales

Terrain proposé par un partenaire foncier selon disponibilités et autorisation de publicité au prix de 72 639 €. Hors droit d'enregistrement et frais de notaire. Maison proposée, avec un contrat de construction de maison individuelle, dans le cadre de la loi du 19/12/1990, au prix de 192 361 € (Hors branchements et raccordements, papiers peints, peintures, revêtement de sol dans les chambres, qui sont chiffrés dans les travaux qui restent à charge du client. Tarif modifiable sans préavis). Étiquette énergie : A. Différents modèles disponibles pour ce terrain. Assurances et garanties du constructeur comprises (RC professionnelle, décennale, dommage ouvrage).

Contactez l'agence de Angers

02 41 77 17 17

    * Champs obligatoires

    Vos informations sont traitées par HEXAOM et transmises à un conseiller commercial qui vous contactera afin de répondre à votre demande. Les plans et images présentés sur notre site sont la propriété d’HEXAOM et ne peuvent pas être reproduits sans son accord. Pour retrouver notre politique de protection des données personnelles et exercer vos droits conformément à la « loi informatique et liberté » cliquez-ici.