Maison neuve à
Saint-Raphaël
(83700) Référence :
AM2329271_1
Prix du projet : Maison avec Terrain
prix 780 000 €
- 3 pièces
- 3 chambres
- Surface maison 127 m2
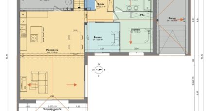
Les Maisons de Manon de Callian vous propose sur ce terrain une réalisation sur mesures de 127m² habitable à étage partiel disposant de nombreuses prestations de qualité premium. Cette villa moderne dispose de trois chambres dont une suite parentale au rez de chaussée avec un bureau, deux salles d'eaux, un bel espace de vie lumineux avec cuisine ouverte donnant sur une agréable terrasse couverte, un cellier ainsi qu'un garage accolé de 18m² à partir 780 000€ttc (terrain inclus, hors frais de notaire, hors frais annexes, hors cuisine et peinture, garage et terrasse inclus). Pour plus d'informations contactez votre conseiller commercial des Maisons de Manon de Callian Mr Maugras Alexandre au O679268866
Annonce proposée par un Agent Commercial Partenaire.
Mentions légales
Terrain proposé par un partenaire foncier selon disponibilités et autorisation de publicité au prix de 399 000 €. Hors droit d'enregistrement et frais de notaire. Maison proposée, avec un contrat de construction de maison individuelle, dans le cadre de la loi du 19/12/1990, au prix de 381 000 € (Hors branchements et raccordements, papiers peints, peintures, revêtement de sol dans les chambres, qui sont chiffrés dans les travaux qui restent à charge du client. Tarif modifiable sans préavis). Étiquette énergie : A. Différents modèles disponibles pour ce terrain. Assurances et garanties du constructeur comprises (RC professionnelle, décennale, dommage ouvrage).Agence Maisons de Manon de Callian (83440)
- Téléphone :
- 04 94 76 22 22
- Adressse :
- D 562
83440 Callian, France
