Maison neuve à
Saint-Brevin-les-Pins
(44250) Référence :
VC2350001_3
Prix du projet : Maison avec Terrain
prix 508 000 €
- 4 pièces
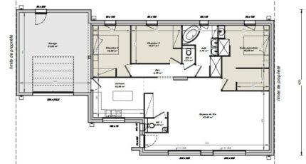
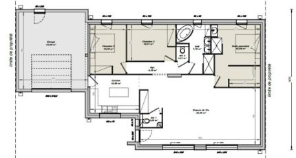
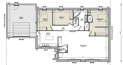
- 3 chambres
- Surface maison 107 m2
Maison F4 (107 m²) en vente à Saint Brévin l'Océan
EMPLACEMENT PRIVILÉGIÉ - MAISON 4 PIÈCES NEUVE
À vendre : à 500 m de l'océan Atlantique, nous vous présentons, bénéficiant d'un emplacement privilégié dans Saint Brévin l'Océan (44250), cette maison de 4 pièces de plain-pied de 107 m² et de 978 m² de terrain. Elle dispose de trois chambres, d'une cuisine et d'une salle de bains.
La maison est neuve.
La maison se situe dans un quartier convoité. Côté transports, on trouve cinq gares à moins de 10 minutes en voiture. La nationale N171 est accessible à 8 km. Il y a un supermarché, plusieurs commerces et une boulangerie à proximité du bien.
Elle est à vendre pour la somme de 508 000 €.
Contactez notre agence (Vincent COUCHAUX : 06-74-86-07-98) pour tout renseignement sur la maison ou sur les démarches à suivre.
Mentions légales
Terrain proposé par un partenaire foncier selon disponibilités et autorisation de publicité au prix de 249 200 €. Hors droit d'enregistrement et frais de notaire. Terrain + Maison proposés au prix de 258 800 € (Hors branchements et raccordements, papiers peints, peintures, revêtement de sol dans les chambres. Tarif modifiable sans préavis). Etiquette énergie : A. Différents modèles disponibles pour ce terrain. Assurances et garanties du constructeur (RC professionnelle, décennale, dommage ouvrage, garantie de remboursement de l'acompte, livraison à prix et délai convenu) : https://www.tradilignes.fr/mentions-legales/.Agence Maisons Tradilignes de Pornic (44210)
- Téléphone :
- 02 40 82 59 91
- Adressse :
- 46 rue du Général de Gaulle
44210 Pornic, France
