Maison neuve à
Saint-Gauzens
(81390) Référence :
JT2293195_2
Prix du projet : Maison avec Terrain
prix 280 455 €
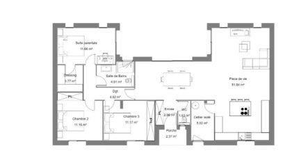
- 4 pièces
- 3 chambres
- Surface maison 110 m2
🏡 Modèle Cocoon - 110 m² d'élégance et de confort
Maisons France Confort Albi, spécialiste de la construction de maisons traditionnelles et à ossature bois, vous présente le modèle Cocoon : une résidence en U de 110 m², pensée comme une véritable oasis de confort et de sophistication.
Alliant design intemporel et élégance moderne, cette maison offre un cadre de vie raffiné et fonctionnel, idéal pour toute la famille.
✨ Un espace de vie lumineux et convivial
Dès l'entrée, vous serez séduit par un espace ouvert, lumineux et aéré, organisé autour des trois côtés de la maison. Les grandes baies vitrées et portes-fenêtres inondent les pièces de lumière naturelle, renforçant la sensation d'espace et sublimant les finitions de qualité.
La cuisine équipée haut de gamme, avec son îlot central élégant, combine esthétisme et praticité. Véritable coeur de la maison, elle favorise la convivialité et invite à partager de bons moments en famille ou entre amis.
🛏 Des chambres pensées pour le bien-être
La maison Cocoon propose trois chambres spacieuses et lumineuses, conçues comme de véritables havres de paix.
Placards intégrés pour un rangement optimal
Matériaux de qualité et ambiance apaisante pour un confort absolu
🌿 Un jardin intérieur unique
Au centre de la maison en U, le jardin intérieur privatif constitue un espace extérieur intime et chaleureux.
Un lieu idéal pour se détendre au soleil, profiter des soirées d'été ou simplement savourer la sérénité d'un cadre harmonieux entre intérieur et extérieur.
💖 Coup de coeur assuré !
N'attendez plus pour concrétiser votre projet de vie.
📞 Contactez Maisons France Confort Albi au 05 63 43 56 40.
Notre équipe vous accompagne de la conception à la réalisation, pour donner vie à votre maison Cocoon.
Annonce proposée par un Agent Commercial Partenaire.
Mentions légales
Terrain proposé par un partenaire foncier selon disponibilités et autorisation de publicité au prix de 57 000 €. Hors droit d'enregistrement et frais de notaire. Maison proposée, avec un contrat de construction de maison individuelle, dans le cadre de la loi du 19/12/1990, au prix de 223 455 € (Hors branchements et raccordements, papiers peints, peintures, revêtement de sol dans les chambres, qui sont chiffrés dans les travaux qui restent à charge du client. Tarif modifiable sans préavis). Étiquette énergie : A. Différents modèles disponibles pour ce terrain. Assurances et garanties du constructeur comprises (RC professionnelle, décennale, dommage ouvrage).Agence Maisons France Confort de Albi (81000)
- Téléphone :
- 05 63 43 56 40
- Adressse :
- 187 avenue Colonel Teyssier
81000 Albi, France
