Maison neuve à
Saint-Hippolyte
(17430) Référence :
CR2355726_1
Prix du projet : Maison avec Terrain
prix 198 454 €
- 3 pièces
- 2 chambres
- Surface maison 69 m2
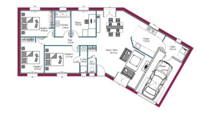
Grâce à son plan en V, cette maison distingue clairement les espaces jour et nuit. D'un côté, l'aile dédiée au repos regroupe 2 ou 3 chambres, une salle de bain et des WC. La version la plus spacieuse intègre une suite parentale pour encore plus de confort.
Un espace de vie fonctionnel et lumineux
L'autre aile est consacrée aux pièces de vie, avec un salon-séjour baigné de lumière. La cuisine semi-ouverte, pensée pour allier convivialité et praticité, est prolongée par un cellier et un garage, offrant des espaces de rangement optimisés.
Des plans modulables pour s'adapter à vos besoins
Déclinée en cinq surfaces, de 69 à 107 m², cette maison s'adapte à tous les projets. Entièrement personnalisable, elle évolue selon vos envies, que ce soit dans l'aménagement des pièces ou les options choisies.
Renseignements Cédric RÊTEUX O7 67 07 20 68
Projet de construction Maisons MCA
Agence Maisons de la Côte Atlantique de Rochefort (17300)
- Téléphone :
- 05 46 88 71 67
- Adressse :
- 95 rue des pêcheurs d'Islande
17300 Rochefort, France
