Maison neuve à
Saint-Maixant
(33490) Référence :
ML2386929_4
Prix du projet : Maison avec Terrain
prix 227 750 €
- 5 pièces
- 3 chambres
- Surface maison 90 m2
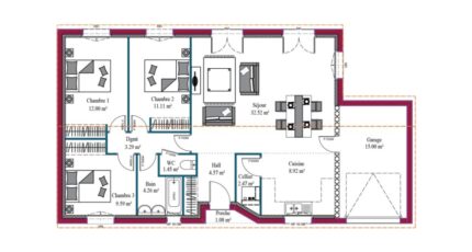
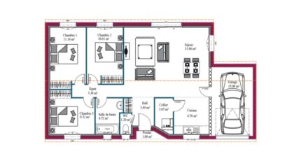
VENTE d'une maison de 5 pièces (90 m²) à Saint-Maixant
IDÉALEMENT SITUÉE - MAISON 5 PIÈCES NEUVE
Nous sommes ravis de vous proposer cette maison de 5 pièces de plain-pied de 90 m² et de 1 040 m² de terrain en vente, idéalement située dans Saint-Maixant (33490). Son intérieur comporte trois chambres, une cuisine et une salle de bains.
Cette maison est neuve.
La maison se trouve dans un secteur recherché. L'École Primaire François Mauriac est implantée à moins de 10 minutes à pied. Niveau transports en commun, il y a sept gares à moins de 10 minutes en voiture. L'autoroute A62 est accessible à 4 km. On trouve deux tennis, une boulangerie, un commerce, un supermarché et une épicerie à proximité du bien.
Son prix de vente est de 227 750 €.
N'hésitez pas à prendre contact avec Maryne LAGORCE (O6-81-35-86-92) pour tout renseignement sur le bien. Maisons de la Côte Atlantique Langon est là pour vous accompagner à toutes les étapes de l'achat.
Mentions légales
Idée de réalisation en modèle prêt à décorer sur l'un de nos terrains partenaires, sous réserve de disponibilités. Voir détails en agence.Agence Maisons de la Côte Atlantique de Langon (33210)
- Téléphone :
- 05 56 76 82 20
- Adressse :
- 2, Rue du Onze Novembre
33210 Langon, France
