Maison neuve à
Saint-Mard
(77230) Référence :
AR2258689_1
Prix du projet : Maison avec Terrain
prix 320 000 €
- 5 pièces
- 3 chambres
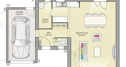
- Surface maison 90 m2
VENTE : maison de 5 pièces (90 m²) à Saint-Mard
IDÉALEMENT SITUÉE - MAISON 5 PIÈCES NEUVE
Au pied du Transilien K (gare de Dammartin-Juilly-Saint-Mard, 30 min de Paris), Maisons France Confort Magny-le-Hongre vous propose en vente, idéalement située dans Saint-Mard (77230), cette maison de 5 pièces de 90 m² et de 460 m² de terrain.
C'est une maison de 2 niveaux. Son intérieur inclut trois chambres, une cuisine et une salle de bains. La maison est neuve.
Cette maison se trouve dans un quartier attractif. Il y a l'École Élémentaire Jacques Prévert, l'École Maternelle Emile Cacheux et le Collège Georges Brassens à moins de 10 minutes à pied et une structure d'accueil pour les enfants en bas âge. Niveau transports, on trouve la gare Dammartin-Juilly-Saint-Mard dans un rayon de 1 km. On trouve une bibliothèque, trois tennis, deux boulangeries, un supermarché, trois commerces, un bureau de poste et deux épiceries dans les environs.
Elle est proposée à l'achat pour 320 000 €.
Prenez contact avec Alan RUBAL (07-68-78-63-84) pour toute information sur la maison, sur les modalités de vente ou sur les démarches à suivre. Maisons France Confort Magny-le-Hongre vous accompagne à toutes les étapes de l'achat et dans tous vos projets immobiliers.
Annonce proposée par un Agent Commercial Partenaire.
Mentions légales
Terrain proposé par un partenaire foncier selon disponibilités et autorisation de publicité au prix de 158 000 €. Hors droit d'enregistrement et frais de notaire. Maison proposée, avec un contrat de construction de maison individuelle, dans le cadre de la loi du 19/12/1990, au prix de 162 000 € (Hors branchements et raccordements, papiers peints, peintures, revêtement de sol dans les chambres, qui sont chiffrés dans les travaux qui restent à charge du client. Tarif modifiable sans préavis). Étiquette énergie : A. Différents modèles disponibles pour ce terrain. Assurances et garanties du constructeur comprises (RC professionnelle, décennale, dommage ouvrage).Agence Maisons France Confort de Magny-le-Hongre (77700)
- Téléphone :
- 01 84 80 92 96
- Adressse :
- 11 rue de Courtalin
77700 Magny-le-Hongre, France
