Maison neuve à
Saint-Martin-d'Auxigny (18110) Référence : JDC2340748_2

Prix du projet : Maison avec Terrain

prix 179 000 €

  • 6 pièces
  • 4 chambres
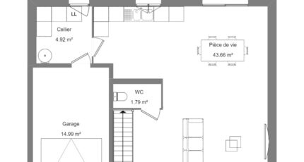
  • Surface maison 111 m2

🏡 Construction Maison R+1 - 4 chambres avec garage - Prestations haut de gamme sur la commune de Saint Martin d'Auxigny

Réalisez votre projet de vie avec Maisons France Confort, constructeur du groupe HEXAOM, premier constructeur de maisons individuelles en France, reconnu pour la qualité et le sérieux de ses réalisations.

✨ Caractéristiques de la maison :

R+1 complet offrant de beaux volumes et une organisation fonctionnelle

4 chambres spacieuses pour toute la famille

2 WC et un cellier pratique pour le rangement

Grande pièce de vie lumineuse pour profiter d'un espace convivial et confortable

Maison conforme aux normes RE2020, garantissant confort thermique et économies d'énergie

🌿 Prestations haut de gamme : matériaux de qualité, finitions soignées et conception moderne pour un confort optimal.

🏠 Maisons France Confort, c'est la garantie d'une construction fiable, sur mesure, et pensée pour allier fonctionnalité, espace et confort, idéale pour une vie de famille sereine.

📞 Envie de concrétiser votre projet ?
Prenez rendez-vous avec David POUPET °6 11 78 22 84 et imaginons ensemble votre future maison.


MAISON FRANCE CONFORT a sélectionné avec un partenaire foncier ce terrain pour construire votre maison.

Mentions légales

Terrain proposé par un partenaire foncier selon disponibilités et autorisation de publicité au prix de 14 000 €. Hors droit d'enregistrement et frais de notaire. Terrain + Maison proposés au prix de 165 000 € (Hors branchements et raccordements, papiers peints, peintures, revêtement de sol dans les chambres. Tarif modifiable sans préavis). Etiquette énergie : A. Différents modèles disponibles pour ce terrain. Assurances et garanties du constructeur (RC professionnelle, décennale, dommage ouvrage, garantie de remboursement de l'acompte, livraison à prix et délai convenu) : https://www.maisons-france-confort.fr/mentions-legales/. HEXAOM Services est enregistré auprès de l'ORIAS en tant que Courtier en financement, Niveau 1, sous le numéro 14001345.

Contactez l'agence de Saint-Doulchard

02 48 16 38 15

    * Champs obligatoires

    Vos informations sont traitées par HEXAOM et transmises à un conseiller commercial qui vous contactera afin de répondre à votre demande. Les plans et images présentés sur notre site sont la propriété d’HEXAOM et ne peuvent pas être reproduits sans son accord. Pour retrouver notre politique de protection des données personnelles et exercer vos droits conformément à la « loi informatique et liberté » cliquez-ici.