Maison neuve à
Saint-Paul-Cap-de-Joux
(81220) Référence :
JT2297981_5
Prix du projet : Maison avec Terrain
prix 270 080 €
- 5 pièces
- 4 chambres
- Surface maison 113 m2
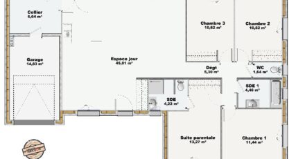
Modèle Lumi - Maison Ossature Bois 113 m²
Maisons France Confort Albi, constructeur de maisons traditionnelles et à ossature bois, vous présente le modèle Lumi : une maison de plain-pied de 113 m², aux volumes généreux et à l'agencement parfaitement pensé.
🟡 Espace jour
Profitez d'une vaste pièce de vie de 45 m², lumineuse, traversante et fonctionnelle - un lieu convivial, idéal pour partager de bons moments en famille ou entre amis.
🟣 Espace nuit
Le confort est au rendez-vous avec :
Trois chambres spacieuses (de 10,60 m² à 12,12 m²),
Une salle de bains,
Un WC indépendant,
Et une superbe suite parentale de 18 m² comprenant dressing, salle d'eau privative (vasque, douche) et WC intégré.
➕ Les atouts en plus
Un cellier de 6,80 m², accessible depuis la pièce de vie, communique directement avec le garage intégré de 15 m², pour un quotidien pratique et bien organisé.
✅ Le modèle Lumi est la maison idéale pour une vie de famille moderne, confortable et économe en énergie.
📞 Intéressé(e) ? Contactez dès aujourd'hui Maisons France Confort Albi au 05 63 43 56 40 pour une étude personnalisée de votre projet.
⚠️ Les frais de notaire et autres frais annexes ne sont pas inclus dans le prix affiché
Annonce proposée par un Agent Commercial Partenaire.
Mentions légales
Terrain proposé par un partenaire foncier selon disponibilités et autorisation de publicité au prix de 38 700 €. Hors droit d'enregistrement et frais de notaire. Maison proposée, avec un contrat de construction de maison individuelle, dans le cadre de la loi du 19/12/1990, au prix de 231 380 € (Hors branchements et raccordements, papiers peints, peintures, revêtement de sol dans les chambres, qui sont chiffrés dans les travaux qui restent à charge du client. Tarif modifiable sans préavis). Étiquette énergie : A. Différents modèles disponibles pour ce terrain. Assurances et garanties du constructeur comprises (RC professionnelle, décennale, dommage ouvrage).Agence Maisons France Confort de Albi (81000)
- Téléphone :
- 05 63 43 56 40
- Adressse :
- 187 avenue Colonel Teyssier
81000 Albi, France
