Maison neuve à
Saint-Yzan-de-Soudiac
(33920) Référence :
SPSTYDS528_1
Prix du projet : Maison avec Terrain
prix 270 000 €
- 7 pièces
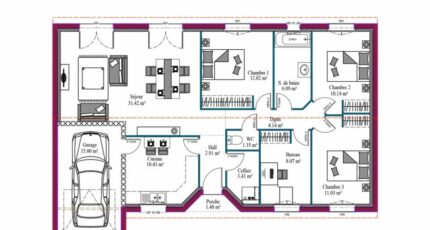
- 4 chambres
- Surface maison 128 m2
Contactez notre agence (Sonia PURY : O6-95-32-58-15) pour toute information sur la maison.
VENTE : maison F7 (128 m² + garage) à Saint-Yzan-de-Soudiac
À Saint-Yzan-de-Soudiac (33920), maison neuve à vendre de 7 pièces, 128 m² et 526 m² de terrain. Conçue de plain-pied, elle dispose de quatre chambres, d'une cuisine et de deux salles de bains et un garage.
À 5 minutes : gares, établissements scolaires, commerces. N10 accessible à 4 km.
Cette maison est proposée à 270 000 € prêt à décorer.
Maisons de la Côte Atlantique Saint-André-de-Cubzac est là pour vous accompagner à toutes les étapes de l'achat.
Agence Maisons de la Côte Atlantique de Saint-André-de-Cubzac (33240)
- Téléphone :
- 05 57 43 10 38
- Adressse :
- 16, Place du Champ de Foire
33240 Saint-André-de-Cubzac, France
