Maison neuve à
Sainte-Gemme (36500) Référence : KG2294940_6

Prix du projet : Maison avec Terrain

prix 218 900 €

  • 3 pièces
  • 2 chambres
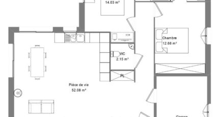
  • Surface maison 100 m2

Sainte-Gemme : maison F3 (100 m²) en vente
IDÉALEMENT SITUÉE - MAISON 3 PIÈCES NEUVE
En vente à 28 km de Châteauroux, nous sommes ravis de vous proposer cette maison de 3 pièces de plain-pied de 100 m², idéalement située dans Sainte-Gemme (36500).
Elle compte deux chambres, une cuisine et deux salles de bains. Cette maison est neuve.
Le terrain de la propriété s'étend sur 1 952 m².
La maison se trouve dans un quartier convoité. Il y a un commerce à quelques minutes.
Elle est proposée à l'achat pour 218 900 €.
N'hésitez pas à prendre contact avec Kevin GRIMAUD (tél : 06-22-14-89-67) pour obtenir de plus amples renseignements sur la maison, sur les démarches à suivre et sur les modalités de vente. Maisons Bruno Petit MJB Châteauroux vous accompagne dans tous vos projets immobiliers et à toutes les étapes de l'achat.

Mentions légales

Terrain proposé par un partenaire foncier selon disponibilités et autorisation de publicité au prix de 21 500 €. Hors droit d'enregistrement et frais de notaire. Maison proposée, avec un contrat de construction de maison individuelle, dans le cadre de la loi du 19/12/1990, au prix de 197 400 € (Hors branchements et raccordements, papiers peints, peintures, revêtement de sol dans les chambres, qui sont chiffrés dans les travaux qui restent à charge du client. Tarif modifiable sans préavis). Étiquette énergie : A. Différents modèles disponibles pour ce terrain. Assurances et garanties du constructeur comprises (RC professionnelle, décennale, dommage ouvrage).

Contactez l'agence de Châteauroux

02 54 22 66 24

    * Champs obligatoires

    Vos informations sont traitées par HEXAOM et transmises à un conseiller commercial qui vous contactera afin de répondre à votre demande. Les plans et images présentés sur notre site sont la propriété d’HEXAOM et ne peuvent pas être reproduits sans son accord. Pour retrouver notre politique de protection des données personnelles et exercer vos droits conformément à la « loi informatique et liberté » cliquez-ici.