Maison neuve à
Sainte-Thorette (18500) Référence : JDC2341224_3

Prix du projet : Maison avec Terrain

prix 180 900 €

  • 4 pièces
  • 2 chambres
  • Surface maison 71 m2

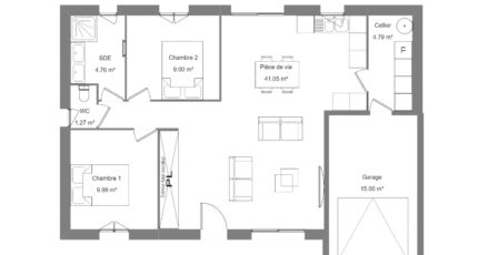
VENTE : maison F4 (71 m²) à Sainte-Thorette

PROCHE DE BOURGES - MAISON 4 PIÈCES NEUVE AVEC COMBLES AMENAGEABLES

À vendre à 14 km de Bourges, nous vous proposons cette maison de 4 pièces de plain-pied de 71 m² et de 1 000 m² de terrain à Sainte-Thorette (18500).

Conçue de plain-pied, elle propose deux chambres, un garage, un cellier, une cuisine et une salle de bains. La maison est neuve. et surtout avec Combles aménageables !

Il y a une école primaire dans le quartier. Côté transports en commun, on trouve les gares Mehun-sur-Yèvre et Marmagne à moins de 10 minutes en voiture. Les autoroutes A71 et A20 et les nationales N151 et N142 sont accessibles à moins de 18 km.

Elle est à vendre pour la somme de 180 900 €.

Contactez Jessica DA COSTA °6 87 68 20 86 pour obtenir de plus amples renseignements sur la maison, sur les modalités de vente ou sur les démarches à suivre.

Mentions légales

Terrain proposé par un partenaire foncier selon disponibilités et autorisation de publicité au prix de 48 000 €. Hors droit d'enregistrement et frais de notaire. Terrain + Maison proposés au prix de 132 900 € (Hors branchements et raccordements, papiers peints, peintures, revêtement de sol dans les chambres. Tarif modifiable sans préavis). Etiquette énergie : A. Différents modèles disponibles pour ce terrain. Assurances et garanties du constructeur (RC professionnelle, décennale, dommage ouvrage, garantie de remboursement de l'acompte, livraison à prix et délai convenu) : https://www.maisons-france-confort.fr/mentions-legales/. HEXAOM Services est enregistré auprès de l'ORIAS en tant que Courtier en financement, Niveau 1, sous le numéro 14001345.

Contactez l'agence de Saint-Doulchard

02 48 16 38 15

    * Champs obligatoires

    Vos informations sont traitées par HEXAOM et transmises à un conseiller commercial qui vous contactera afin de répondre à votre demande. Les plans et images présentés sur notre site sont la propriété d’HEXAOM et ne peuvent pas être reproduits sans son accord. Pour retrouver notre politique de protection des données personnelles et exercer vos droits conformément à la « loi informatique et liberté » cliquez-ici.