Maison neuve à
Saussines
(34160) Référence :
XM2386656_1
Prix du projet : Maison avec Terrain
prix 475 000 €
- 4 pièces
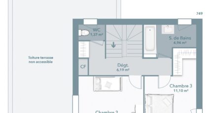
- 3 chambres
- Surface maison 95 m2
Réaliser le rêve d'être propriétaire à SAUSSINES
Architecture travaillée aux lignes épurées, Maisons France Confort a le plaisir de vous présenter cette maison contemporaine
Elle dispose d'une pièce à vivre chaleureuse et lumineuse grâce à ses larges ouvertures, et un bel espace cuisine pouvant accueillir un îlot central
Son intérieur compte trois chambres.
Les Menuiseries sont en alu avec volets roulants motorisés centralisés depuis votre smartphone
Chauffage clim réversible gainable(s)
Emplacement recherché :
Il y a une école primaire dans le quartier. Côté transports en commun, on trouve la gare Lunel-Viel à moins de 10 minutes en voiture. Il y a un accès à l'autoroute A9 à 9 km. Il y a une bibliothèque et une épicerie à quelques minutes à peine.
Prix: 475 000€.
(Sous réserve de disponibilités)
Votre maison bioclimatique est livrée crépis gratté + carrelage dans toutes les pièces (A choisir). Dans la salle de bain la faïence est comprise (A choisir). Les sanitaires avec meuble(s) vasque(s) et wc suspendu sont déjà inclus.
Annonce proposée par un Agent Commercial Partenaire.
Mentions légales
Terrain proposé par un partenaire foncier selon disponibilités et autorisation de publicité au prix de 209 900 €. Hors droit d'enregistrement et frais de notaire. Terrain + Maison proposés au prix de 265 100 € (Hors branchements et raccordements, papiers peints, peintures, revêtement de sol dans les chambres. Tarif modifiable sans préavis). Etiquette énergie : A. Différents modèles disponibles pour ce terrain. Assurances et garanties du constructeur (RC professionnelle, décennale, dommage ouvrage, garantie de remboursement de l'acompte, livraison à prix et délai convenu) : https://www.maisons-france-confort.fr/mentions-legales/. HEXAOM Services est enregistré auprès de l'ORIAS en tant que Courtier en financement, Niveau 1, sous le numéro 14001345.Agence Maisons France Confort de Montpellier (34000)
- Téléphone :
- 04 67 64 85 11
- Adressse :
- 48, impasse Louis Ferdinand Herold
34000 Montpellier, France
