Maison neuve à
Sénas
(13560) Référence :
HL2270990_1
Prix du projet : Maison avec Terrain
prix 314 000 €
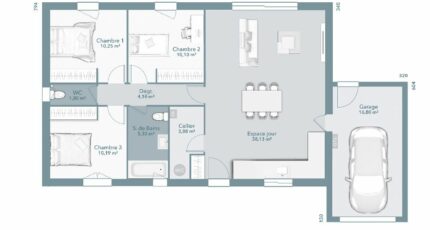
- 4 pièces
- 3 chambres
- Surface maison 83 m2
Maison France Confort, en partenariat avec son partenaire foncier, vous propose un terrain idéalement situé sur la commune de Sénas, à deux pas du centre-ville, des commerces et des écoles.
Entre Avignon et Salon-de-Provence, et à proximité d'Aix-en-Provence et Marseille, ce terrain bénéficie d'une localisation stratégique et agréable à vivre.
À titre d'exemple, nous vous proposons un projet de construction comprenant :
Une maison moderne et fonctionnelle,
3 chambres spacieuses,
Une pièce de vie lumineuse de 38 m².
Le tout pour un budget à partir de 314 OOO € (hors frais de notaire, taxes et frais annexes).
« Nous vous proposons également des terrains disponibles sur différentes communes telles qu'Eyguières, Mallemort, Salon-de-Provence, Saint-Martin-de-Crau, Fontvieille, Fos-sur-Mer, Istres, Saint-Chamas ainsi que sur d'autres secteurs environnants. »
Ce projet reste entièrement personnalisable et modifiable selon vos envies et vos besoins.
Pour toute information complémentaire ou pour convenir d'un premier rendez-vous (téléphonique ou en agence à Salon-de-Provence), n'hésitez pas à nous contacter au O6 25 52 02 32 ou O4 9O 56 39 36
Mentions légales
Terrain proposé par un partenaire foncier selon disponibilités et autorisation de publicité au prix de 159 000 €. Hors droit d'enregistrement et frais de notaire. Maison proposée, avec un contrat de construction de maison individuelle, dans le cadre de la loi du 19/12/1990, au prix de 155 000 € (Hors branchements et raccordements, papiers peints, peintures, revêtement de sol dans les chambres, qui sont chiffrés dans les travaux qui restent à charge du client. Tarif modifiable sans préavis). Étiquette énergie : A. Différents modèles disponibles pour ce terrain. Assurances et garanties du constructeur comprises (RC professionnelle, décennale, dommage ouvrage).Agence Maisons France Confort de Salon-de-Provence (13300)
- Téléphone :
- 04 90 56 69 36
- Adressse :
- 229, Avenue Georges Borel
13300 Salon-de-Provence, France
