Maison neuve à
Senlis
(60300) Référence :
FBrullly65_3
Prix du projet : Maison avec Terrain
prix 348 000 €
- 5 pièces
- 3 chambres
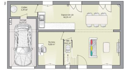
- Surface maison 90 m2
VENTE d'une maison F5 (90 m²) à Rully
EMPLACEMENT PRIVILÉGIÉ - MAISON 5 PIÈCES NEUVE
À vendre : à 20 km de Compiègne, nous vous présentons cette maison de 5 pièces de 90 m² et de 515 m² de terrain bénéficiant d'un emplacement privilégié dans Rully (60810).
Il s'agit d'une maison de 2 niveaux. Elle propose trois chambres, une cuisine et une salle de bains. La maison est neuve.
La propriété se trouve dans un secteur attractif. Une école primaire y est implantée. Côté transports en commun, il y a la gare Pont-Sainte-Maxence à moins de 10 minutes en voiture. L'autoroute A1 et la nationale N324 sont accessibles à moins de 7 km. On trouve un commerce dans les environs.
Elle est proposée à l'achat pour 348 000 €.
Contactez Fabrice BONELLO (06-09-50-50-09) pour toute information sur la maison, sur les modalités de vente ou sur les démarches à suivre. Faites de vos projets immobiliers une réalité avec Maisons France Confort Beauvais.
Mentions légales
Terrain proposé par un partenaire foncier selon disponibilités et autorisation de publicité au prix de 134 000 €. Hors droit d'enregistrement et frais de notaire. Terrain + Maison proposés au prix de 214 000 € (Hors branchements et raccordements, papiers peints, peintures, revêtement de sol dans les chambres. Tarif modifiable sans préavis). Etiquette énergie : A. Différents modèles disponibles pour ce terrain. Assurances et garanties du constructeur (RC professionnelle, décennale, dommage ouvrage, garantie de remboursement de l'acompte, livraison à prix et délai convenu) : https://www.maisons-france-confort.fr/mentions-legales/. HEXAOM Services est enregistré auprès de l'ORIAS en tant que Courtier en financement, Niveau 1, sous le numéro 14001345.Agence Maisons France Confort de Beauvais (60000)
- Téléphone :
- 03 44 04 40 04
- Adressse :
- 42 rue Pierre Jacoby
60000 Beauvais, France
