Maison neuve à
Senlis
(60300) Référence :
FBrullly65_4
Prix du projet : Maison avec Terrain
prix 327 000 €
- 5 pièces
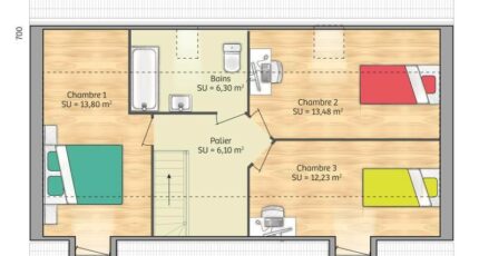
- 3 chambres
- Surface maison 80 m2
VENTE d'une maison de 5 pièces (80 m²) à Rully
EMPLACEMENT PRIVILÉGIÉ - MAISON 5 PIÈCES NEUVE
À vendre : localisée à 20 km de Compiègne, bénéficiant d'un emplacement d'exception dans Rully (60810), Maisons France Confort Beauvais vous propose cette maison de 5 pièces de 80 m².
Cette maison possède 2 niveaux. Son intérieur dispose de trois chambres, d'une cuisine et d'une salle de bains. La maison est neuve.
Le terrain de la propriété s'étend sur 515 m².
Cette maison est située dans un secteur prisé. On y trouve une école primaire. Côté transports, il y a la gare Pont-Sainte-Maxence à moins de 10 minutes en voiture. L'autoroute A1 et la nationale N324 sont accessibles à moins de 7 km. On trouve un commerce à quelques minutes.
Son prix de vente est de 327 000 €.
N'hésitez pas à prendre contact avec Fabrice BONELLO (tél : 06-09-50-50-09) pour obtenir de plus amples informations sur la propriété, sur les démarches à suivre ou sur les modalités de vente. Faites de vos projets immobiliers une réalité avec Maisons France Confort Beauvais.
Mentions légales
Terrain proposé par un partenaire foncier selon disponibilités et autorisation de publicité au prix de 134 000 €. Hors droit d'enregistrement et frais de notaire. Terrain + Maison proposés au prix de 193 000 € (Hors branchements et raccordements, papiers peints, peintures, revêtement de sol dans les chambres. Tarif modifiable sans préavis). Etiquette énergie : A. Différents modèles disponibles pour ce terrain. Assurances et garanties du constructeur (RC professionnelle, décennale, dommage ouvrage, garantie de remboursement de l'acompte, livraison à prix et délai convenu) : https://www.maisons-france-confort.fr/mentions-legales/. HEXAOM Services est enregistré auprès de l'ORIAS en tant que Courtier en financement, Niveau 1, sous le numéro 14001345.Agence Maisons France Confort de Beauvais (60000)
- Téléphone :
- 03 44 04 40 04
- Adressse :
- 42 rue Pierre Jacoby
60000 Beauvais, France
