Maison neuve à
Serris
(77700) Référence :
HN2285202_1
Prix du projet : Maison avec Terrain
prix 380 000 €
- 5 pièces
- 3 chambres
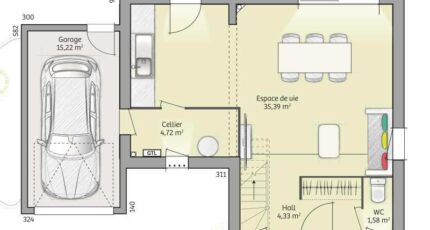
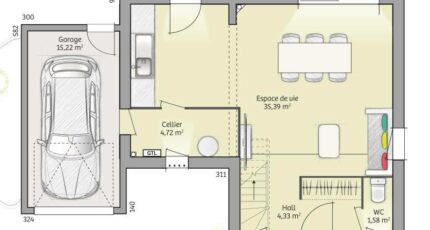
- Surface maison 90 m2
Serris : maison de 5 pièces (90 m²) à vendre
IDÉALEMENT SITUÉE - MAISON 5 PIÈCES NEUVE
À proximité de la station Val d'Europe (Paris à 30 min avec le RER A), découvrez cette maison de 5 pièces de 90 m² et de 399 m² de terrain idéalement située dans Serris (77700).
Cette maison comporte 2 niveaux. Elle compte trois chambres, une cuisine et une salle de bains. Cette maison est neuve.
La maison se situe dans un quartier prisé. On trouve cinq établissements scolaires à moins de 10 minutes à pied, tout comme une crèche. Niveau transports, il y a la ligne de RER A (Val-D'Europe) ainsi que sept gares à moins de 10 minutes en voiture. On trouve un tennis, un bassin de natation, une boulangerie, des commerces, deux supérettes et une épicerie dans les environs.
Elle est proposée à l'achat pour 380 000 €.
Contactez Hugo NGUYEN (tél : 06-60-97-69-03) pour tout renseignement sur la maison. Maisons France Confort Magny-le-Hongre vous accompagne à toutes les étapes de votre projet et dans tous vos projets immobiliers.
Annonce proposée par un Agent Commercial Partenaire.
Mentions légales
Terrain proposé par un partenaire foncier selon disponibilités et autorisation de publicité au prix de 159 000 €. Hors droit d'enregistrement et frais de notaire. Maison proposée, avec un contrat de construction de maison individuelle, dans le cadre de la loi du 19/12/1990, au prix de 221 000 € (Hors branchements et raccordements, papiers peints, peintures, revêtement de sol dans les chambres, qui sont chiffrés dans les travaux qui restent à charge du client. Tarif modifiable sans préavis). Étiquette énergie : A. Différents modèles disponibles pour ce terrain. Assurances et garanties du constructeur comprises (RC professionnelle, décennale, dommage ouvrage).Agence Maisons France Confort de Magny-le-Hongre (77700)
- Téléphone :
- 01 84 80 92 96
- Adressse :
- 11 rue de Courtalin
77700 Magny-le-Hongre, France
