Maison neuve à
Soisy-sous-Montmorency
(95230) Référence :
CY2281306_1
Prix du projet : Maison avec Terrain
prix 395 000 €
- 5 pièces
- 3 chambres
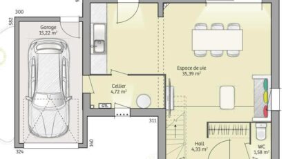
- Surface maison 90 m2
Maison de 5 pièces (90 m²) en vente à Soisy-sous-Montmorency
MAISON 5 PIÈCES NEUVE - PROCHE DE PARIS
À vendre : à côté de la gare de Champ de Courses d'Enghien (Paris à 15 min avec le Transilien H), à Soisy-sous-Montmorency (95230), nous vous proposons cette maison de 5 pièces de 90 m². Elle inclut trois chambres, une cuisine et une salle de bains.
Le terrain de la propriété est de 320 m².
C'est une maison de 2 niveaux. Elle est neuve.
Plusieurs établissements scolaires (maternelle, élémentaire, primaire et collège) sont implantés à moins de 10 minutes à pied. Niveau transports, il y a trois lignes de RER (C, D et B) ainsi que 51 gares à moins de 10 minutes en voiture. On trouve une bibliothèque, deux tennis, un bassin de natation, quatre boulangeries, des commerces, deux supermarchés, trois épiceries et une supérette à proximité. Enfin, le marché Centre-Ville a lieu tous les vendredis matin.
Elle est à vendre pour la somme de 395 000 €.
N'hésitez pas à prendre contact avec Cedric YAHIAOUI (tél : 06-66-57-00-63) pour toute information sur la maison, sur les démarches à suivre ou sur les modalités de vente.
Annonce proposée par un Agent Commercial Partenaire.
Mentions légales
Terrain proposé par un partenaire foncier selon disponibilités et autorisation de publicité au prix de 219 000 €. Hors droit d'enregistrement et frais de notaire. Maison proposée, avec un contrat de construction de maison individuelle, dans le cadre de la loi du 19/12/1990, au prix de 176 000 € (Hors branchements et raccordements, papiers peints, peintures, revêtement de sol dans les chambres, qui sont chiffrés dans les travaux qui restent à charge du client. Tarif modifiable sans préavis). Étiquette énergie : A. Différents modèles disponibles pour ce terrain. Assurances et garanties du constructeur comprises (RC professionnelle, décennale, dommage ouvrage).Agence Maisons France Confort de Magny-le-Hongre (77700)
- Téléphone :
- 01 84 80 92 96
- Adressse :
- 11 rue de Courtalin
77700 Magny-le-Hongre, France
