Maison neuve à
Soullans
(85300) Référence :
TM2327924_2
Prix du projet : Maison avec Terrain
prix 198 000 €
- 3 pièces
- 2 chambres
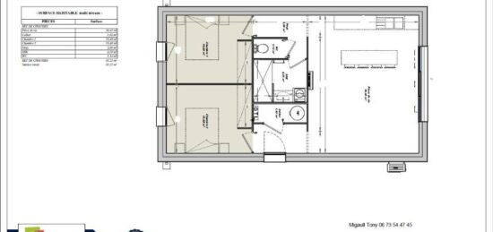
- Surface maison 61 m2
Maison de 3 pièces (61 m²) à vendre à Soullans
IDÉALEMENT SITUÉE - MAISON 3 PIÈCES NEUVE
En vente : à 12 km de la côte atlantique, LMP Constructeur Challans vous propose cette maison de 3 pièces de plain-pied de 61 m² et de 360 m² de terrain idéalement située dans Soullans (85300).
Elle offre deux chambres, une cuisine et une salle de bains. Cette maison est neuve.
La maison se situe dans un quartier recherché. L'École Primaire Publique Charles Milcendeau et l'École Primaire Privée les Roseaux se trouvent à moins de 5 minutes. Côté transports en commun, il y a deux gares (Challans et Saint-Hilaire-de-Riez) à moins de 10 minutes en voiture. On trouve un tennis, quatre commerces, deux boulangeries, une supérette, deux boucheries-charcuteries et un bureau de poste dans les environs.
Elle est à vendre pour la somme de 198 000 €.
Contactez Tony MIGAULT (tél : 06-73-54-47-45) pour tout renseignement sur la maison.
Mentions légales
Terrain proposé par un partenaire foncier selon disponibilités et autorisation de publicité au prix de 73 000 €. Hors droit d'enregistrement et frais de notaire. Maison proposée, avec un contrat de construction de maison individuelle, dans le cadre de la loi du 19/12/1990, au prix de 125 000 € (Hors branchements et raccordements, papiers peints, peintures, revêtement de sol dans les chambres, qui sont chiffrés dans les travaux qui restent à charge du client. Tarif modifiable sans préavis). Étiquette énergie : A. Différents modèles disponibles pour ce terrain. Assurances et garanties du constructeur comprises (RC professionnelle, décennale, dommage ouvrage).Agence Logis du Marais Poitevin de Challans (85300)
- Téléphone :
- 02 51 55 17 74
- Adressse :
- 4 Place du Champ de Foire
85300 Challans, France
