Maison neuve à
Soustons
(40140) Référence :
NP2447673_3
Prix du projet : Maison avec Terrain
prix 533 000 €
- 5 pièces
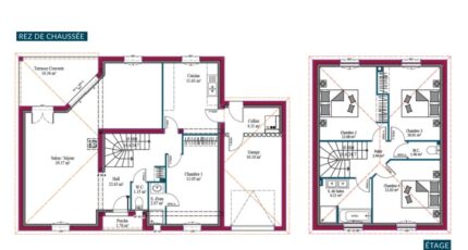
- 4 chambres
- Surface maison 130 m2
Nathalie PENICAUT des maisons MCA Soustons, vous propose d'adapter le modèle Arpège, sur ce beau terrain d'environ 536m2, idéalement situé sur la commune de Soustons, à seulement 10 minutes des plages, et à 5 minutes de l'accès autoroute Bayonne/Bordeaux.
Cette grande maison de 131 m² est idéale pour accueillir une famille. Composée de 4 chambres (3 à l'étage avec une salle de bain et une suite parentale au rez-de-chaussée), d'un séjour avec terrasse couverte, d'une cuisine séparée avec son cellier et le garage attenant. Cette maison possède plus d'un atout pour vous séduire, et reste entièrement personnalisable pour s'adapter à vos besoins.
Ce modèle saura vous plaire grâce à son agencement idéalement pensé pour votre confort de vie, et l'optimisation des espaces.
Le prix affiché comprend le terrain, les frais de notaire, les frais annexes (raccordements, bornage), et cette maison livrée prête à décorer.
N'attendez plus, contactez vite Nathalie PENICAUT à l'agence MCA de Soustons, afin qu'elle vous guide dans les démarches et vous accompagne dans ce projet de construction personnalisé, aux normes RE2020.
Mentions légales
Idée de réalisation en modèle prêt à décorer sur l'un de nos terrains partenaires, sous réserve de disponibilités. Voir détails en agence.Agence Maisons de la Côte Atlantique de Soustons (40140)
- Téléphone :
- 05 33 04 08 40
- Adressse :
- 5 place de l'hôtel de ville
40140 Soustons, France
