Maison neuve à
Talmont-Saint-Hilaire (85440) Référence : JG2281722_3

Prix du projet : Maison avec Terrain

prix 230 000 €

  • 3 pièces
  • 2 chambres
  • Surface maison 68 m2

Terrain + Maison neuve à vendre - Talmont-Saint-Hilaire (85440)
INDEAL INVESTISSEUR PROJET EN PMR
Emplacement idéal - Proche Les Sables-d'Olonne et à 4 km de l'océan Atlantique

Nous vous proposons un terrain viabilisé de 343 m², exposé plein sud, situé dans un secteur recherché à Talmont-Saint-Hilaire. Idéal pour y construire votre investissemet locatif , il offre un cadre de vie agréable, proche des commerces, des écoles (maternelle, primaire, collège) et des pistes cyclables permettant un accès rapide aux plages (15 minutes).

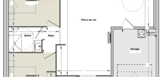
Sur ce terrain, nous vous présentons un projet de maison neuve de plain-pied de 68 m² comprenant :

3 pièces dont 2 chambres
Une cuisine fonctionnelle .

Une salle de bains au norme pmr
un wc pmr independant
Un garage

👉 Prix du terrain + maison : 230 000 €
👉 Maison proposée en construction neuve (devis et accompagnement sur demande).

Pour plus d'informations sur ce terrain, la maison ou les démarches à suivre, contactez notre agence :
Jessica Gauthreau - 07 49 20 70 93
LMP Constructeur Angles - 24 Rue Nationale, 85750 Angles
Nous vous accompagnons dans toutes les étapes de votre projet.

Annonce proposée par un Agent Commercial Partenaire.

Mentions légales

Terrain proposé par un partenaire foncier selon disponibilités et autorisation de publicité au prix de 100 000 €. Hors droit d'enregistrement et frais de notaire. Maison proposée, avec un contrat de construction de maison individuelle, dans le cadre de la loi du 19/12/1990, au prix de 130 000 € (Hors branchements et raccordements, papiers peints, peintures, revêtement de sol dans les chambres, qui sont chiffrés dans les travaux qui restent à charge du client. Tarif modifiable sans préavis). Étiquette énergie : A. Différents modèles disponibles pour ce terrain. Assurances et garanties du constructeur comprises (RC professionnelle, décennale, dommage ouvrage).

Contactez l'agence de Angles

02 51 27 43 52

    * Champs obligatoires

    Vos informations sont traitées par HEXAOM et transmises à un conseiller commercial qui vous contactera afin de répondre à votre demande. Les plans et images présentés sur notre site sont la propriété d’HEXAOM et ne peuvent pas être reproduits sans son accord. Pour retrouver notre politique de protection des données personnelles et exercer vos droits conformément à la « loi informatique et liberté » cliquez-ici.