Maison neuve à
Thumeries
(59239) Référence :
MK2354990_6
Prix du projet : Maison avec Terrain
prix 357 400 €
- 6 pièces
- 4 chambres
- Surface maison 125 m2
EMPLACEMENT PRIVILÉGIÉ - MAISON NEUVE A CONSTRUIRE
VOTRE CONSEILLER : Maxime KENNEDY - O6 14 84 91 64
Venez découvrir votre future maison neuve sur la commune de Thumeries.
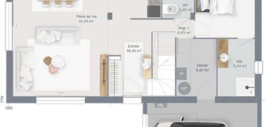
Il s'agit d'une maison de 5 pièces type R+1 d'une surface habitable de 124 m² + 19 m² de garage.
Cette maison contemporaine en R+1 dispose d'un garage accolé en toiture 3 pans ainsi qu'une noue en 3 pans également sur le pignon gauche. Elle dispose également de quatre chambres, d'un grand espace de vie de lumineux, d'une suite parentale au rez-de-chaussée et d'un garage accolé de 19 m² avec un cellier attenant.
Construction conforme aux dernières normes RE2020 (basse consommation) sur une base de mur composite (mur en bio bric de 20 cm + vide d'air + briques moulées-mains).
Mode de chauffage dernière génération via pompe à chaleur air / eau sur plancher chauffant rez-de-chaussée et radiateurs à l'étage.
Plans sur mesures et modifiables à la demande.
Garanties et assurances obligatoires incluses (voir détails en agence).
Hors raccordements, hors branchements, hors frais de notaire sur le terrain.
Terrain sélectionné et vu pour vous sous réserve de disponibilité et au prix indiqué par notre partenaire foncier.
La maison est située dans un quartier recherché proche de Wahagnies, Libercourt, Bersée, Faumont, Mérignies, Pont-à-Marcq, Attiches, Lille, Douai, etc
A proximité des écoles et commerces de proximités.
Son prix de vente est de 357 400 €.
Contactez Maxime Kennedy (O6 14 84 91 64) pour toute information sur ce projet.
Pourquoi faire confiance à Maisons France confort ?
Maisons France Confort c'est le numéro 1 en France de la construction de maisons individuelles avec nos maisons personnalisables et qui s'adaptent à chaque budget.
C'est un accompagnement personnel dans toutes les démarches et étapes de votre projet immobilier (terrain, maison et financement entre autres).
Ensemble, construisons la maison qui vous ressemble !
Annonce proposée par un Agent C
Mentions légales
Terrain proposé par un partenaire foncier selon disponibilités et autorisation de publicité au prix de 80 000 €. Hors droit d'enregistrement et frais de notaire. Maison proposée, avec un contrat de construction de maison individuelle, dans le cadre de la loi du 19/12/1990, au prix de 277 400 € (Hors branchements et raccordements, papiers peints, peintures, revêtement de sol dans les chambres, qui sont chiffrés dans les travaux qui restent à charge du client. Tarif modifiable sans préavis). Étiquette énergie : A. Différents modèles disponibles pour ce terrain. Assurances et garanties du constructeur comprises (RC professionnelle, décennale, dommage ouvrage).Agence Maisons France Confort de Valenciennes (59300)
- Téléphone :
- 03 27 09 13 49
- Adressse :
- 1, Boulevard Saly
59300 Valenciennes, France
