Maison neuve à
Toulenne (33210) Référence : FH2314851_1

Prix du projet : Maison avec Terrain

prix 319 850 €

  • 4 pièces
  • 3 chambres
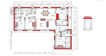
  • Surface maison 120 m2

À Toulenne, dans un secteur résidentiel prisé à proximité immédiate du centre, découvrez ce projet de construction complet associant un terrain plat d'environ 950 m² et une maison moderne en L de 120 m² habitables.

Cette maison familiale, fonctionnelle et lumineuse, offre un vaste espace de vie de plus de 50 m² avec cuisine ouverte, cellier attenant et grandes baies vitrées donnant sur le jardin.
La partie nuit se compose de 3 chambres spacieuses, d'une suite parentale avec dressing et salle d'eau privative, ainsi que d'une seconde salle de bains et de deux WC indépendants.

Le plan en L permet une belle intégration sur le terrain, avec la possibilité d'ajouter terrasse, piscine et garage selon vos envies.
L'école est accessible à pied en moins de cinq minutes, la gare et l'accès autoroute se trouvent à proximité immédiate, garantissant un cadre de vie pratique et paisible.

Un projet complet, alliant emplacement de choix, confort et modernité, à personnaliser selon vos besoins.

Accompagnement & suivi du projet :
Ce terrain vous est proposé par Sophia Barrere - Alpha Constructions, qui vous accompagne dans toutes les étapes de votre construction : étude du projet, conseils personnalisés, conception sur mesure et suivi complet jusqu'à la remise des clés.
Un accompagnement professionnel et sécurisé pour bâtir sereinement.

Mentions légales

Terrain proposé par un partenaire foncier selon disponibilité dans le cadre d’un projet de construction avec Alpha Constructions. Les descriptions, photographies, surfaces et prix illustrant l’annonce sont fournies à titre indicatif et ne sont pas contractuels. Non soumis au DPE. Différents modèles disponibles.

Contactez l'agence de Langon

05 57 98 50 94

    * Champs obligatoires

    Vos informations sont traitées par HEXAOM et transmises à un conseiller commercial qui vous contactera afin de répondre à votre demande. Les plans et images présentés sur notre site sont la propriété d’HEXAOM et ne peuvent pas être reproduits sans son accord. Pour retrouver notre politique de protection des données personnelles et exercer vos droits conformément à la « loi informatique et liberté » cliquez-ici.