Maison neuve à
Verderel-lès-Sauqueuse
(60112) Référence :
FBv.lessauqueuse99_6
Prix du projet : Maison avec Terrain
prix 234 000 €
- 5 pièces
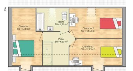
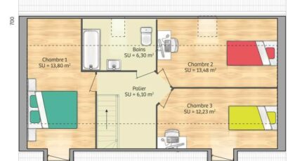
- 3 chambres
- Surface maison 80 m2
VENTE d'une maison F5 (80 m²) à Verderel-lès-Sauqueuse
IDÉALEMENT SITUÉE - MAISON 5 PIÈCES NEUVE
À vendre à quelques kilomètres de Beauvais, nous vous présentons cette maison de 5 pièces de 80 m² et de 660 m² de terrain idéalement située dans Verderel-lès-Sauqueuse (60112). Elle se divise en trois chambres, une cuisine et une salle de bains.
C'est une maison de 2 niveaux. Elle est neuve.
Cette maison se trouve dans un secteur attractif. Il y a des écoles de tous niveaux (de la maternelle au lycée) à moins de 10 minutes en voiture, quatre structures d'accueil pour la petite enfance à moins de 10 minutes à pied, tout comme une établissement du supérieur à moins de 10 minutes en voiture : l'Institut polytechnique UniLaSalle. Niveau transports, on trouve quatre gares dans les environs. Il y a des bibliothèques, des tennis, deux bassins de natation, des commerces, des boulangeries, des supermarchés, des épiceries et une poissonnerie à quelques minutes de la maison. Le marché Place des Halles anime le quartier.
Son prix de vente est de 234 000 €.
Contactez notre agence (Fabrice BONELLO : 06-09-50-50-09) pour obtenir de plus amples informations sur la maison ou sur les modalités de vente.
Mentions légales
Terrain proposé par un partenaire foncier selon disponibilités et autorisation de publicité au prix de 48 000 €. Hors droit d'enregistrement et frais de notaire. Terrain + Maison proposés au prix de 186 000 € (Hors branchements et raccordements, papiers peints, peintures, revêtement de sol dans les chambres. Tarif modifiable sans préavis). Etiquette énergie : A. Différents modèles disponibles pour ce terrain. Assurances et garanties du constructeur (RC professionnelle, décennale, dommage ouvrage, garantie de remboursement de l'acompte, livraison à prix et délai convenu) : https://www.maisons-france-confort.fr/mentions-legales/. HEXAOM Services est enregistré auprès de l'ORIAS en tant que Courtier en financement, Niveau 1, sous le numéro 14001345.Agence Maisons France Confort de Beauvais (60000)
- Téléphone :
- 03 44 04 40 04
- Adressse :
- 42 rue Pierre Jacoby
60000 Beauvais, France
