Maison neuve à
Verrières-le-Buisson
(91370) Référence :
SA2285983_2
Prix du projet : Maison avec Terrain
prix 868 000 €
- 8 pièces
- 4 chambres
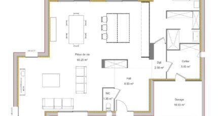
- Surface maison 150 m2
VENTE : maison F8 (150 m²) à Verrières-le-Buisson
MAISON 8 PIÈCES NEUVE - PROCHE DE PARIS
À côté de la station Massy-Verrières du RER B (15 min de Paris), nous vous proposons cette maison de 8 pièces de 150 m² à Verrières-le-Buisson (91370).
Il s'agit d'une maison de 2 niveaux. Son intérieur propose quatre chambres, une cuisine et deux salles de bains. La maison est neuve.
Le terrain du bien s'étend sur 625 m².
Il y a tous les types d'écoles (maternelle, élémentaire et secondaire) dans la commune. Niveau transports, on trouve les lignes de RER C et B ainsi que 32 gares à moins de 10 minutes en voiture. Il y a une bibliothèque et un commerce à proximité du logement.
Son prix de vente est de 868 000 €.
Contactez notre agence (AUGUSTINE Sabrina : 06-23-03-68-32) pour obtenir de plus amples renseignements sur cette propriété. Faites de vos projets immobiliers une réalité avec Maisons France Confort Ris-Orangis.
Mentions légales
Terrain proposé par un partenaire foncier selon disponibilités et autorisation de publicité au prix de 520 000 €. Hors droit d'enregistrement et frais de notaire. Maison proposée, avec un contrat de construction de maison individuelle, dans le cadre de la loi du 19/12/1990, au prix de 348 000 € (Hors branchements et raccordements, papiers peints, peintures, revêtement de sol dans les chambres, qui sont chiffrés dans les travaux qui restent à charge du client. Tarif modifiable sans préavis). Étiquette énergie : A. Différents modèles disponibles pour ce terrain. Assurances et garanties du constructeur comprises (RC professionnelle, décennale, dommage ouvrage).Agence Maisons France Confort de Ris-Orangis (91130)
- Téléphone :
- 01 60 47 83 15
- Adressse :
- 57 rue Albert Rémy
91130 Ris-Orangis, France
