Maison neuve à
Vertheuil
(33180) Référence :
JR2267077_2
Prix du projet : Maison avec Terrain
prix 242 600 €
- 5 pièces
- 3 chambres
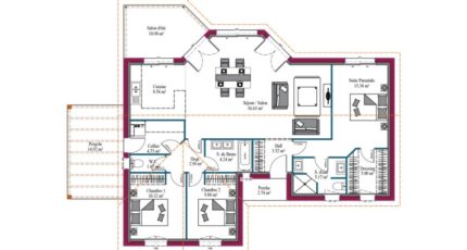
- Surface maison 107 m2
VENTE : maison F5 (107 m²) à Vertheuil
EMPLACEMENT PRIVILÉGIÉ - MAISON 5 PIÈCES NEUVE
En vente à 10 km de la côte atlantique, Maisons de la Côte Atlantique Bordeaux vous présente cette maison de 5 pièces de plain-pied de 107 m² et de 1 200 m² de terrain bénéficiant d'un emplacement privilégié dans Vertheuil (33180).
Son intérieur comporte trois chambres, une cuisine et une salle de bains. La maison est neuve.
La maison est située dans un secteur prisé. On trouve l'École Primaire Lucie Aubrac à moins de 10 minutes à pied. Niveau transports en commun, il y a la gare Pauillac à moins de 10 minutes en voiture. On trouve une bibliothèque, une boulangerie et un commerce dans les environs.
Son prix de vente est de 242 600 €.
Contactez Jonathan RAIMBAULT (tél : 07-69-40-4O-06) pour toute question sur la maison, sur les modalités de vente ou sur les démarches à suivre. Faites de vos projets immobiliers une réalité avec Maisons de la Côte Atlantique Bordeaux.
Agence Maisons de la Côte Atlantique de Bordeaux (33000)
- Téléphone :
- 05 57 19 56 19
- Adressse :
- Homexpo - Pavillon HORIZON
33000 Bordeaux, France
