Maison neuve à
Vierzon (18100) Référence : JL2249848_1

Prix du projet : Maison avec Terrain

prix 165 100 €

  • 3 pièces
  • 3 chambres
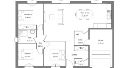
  • Surface maison 80 m2

Maison de 3 pièces (80 m²) en vente à Vierzon
IDÉALEMENT SITUÉE - MAISON 3 PIÈCES NEUVE
Nous sommes heureux de vous proposer cette maison de 3 pièces de plain-pied de 80 m² et de 420 m² de terrain en vente, idéalement située dans Vierzon (18100). Conçue de plain-pied, elle inclut trois chambres, une cuisine et une salle de bains.
Cette maison est neuve.
Cette maison se situe dans un quartier attractif. Des écoles de tous types (de la maternelle au lycée) sont implantées à moins de 10 minutes à pied, tout comme deux structures d'accueil pour la petite enfance. Niveau transports en commun, il y a les gares Vierzon, Vierzon Forges et Foëcy à moins de 10 minutes en voiture. Les autoroutes A71 et A20 sont accessibles à moins de 3 km. On trouve un bassin de natation, des commerces, des boulangeries, deux supermarchés, un bureau de poste et une supérette à quelques minutes du bien. Ne manquez pas le marché Centre-Ville chaque samedi matin.
Elle est proposée à l'achat pour 165 100 €.
N'hésitez pas à prendre contact avec Jonathan LEBLANC (tél : 02-48-50-26-25) pour toute question sur la maison. Maisons Bruno Petit MJB Bourges est là pour vous accompagner à toutes les étapes de votre projet.

Mentions légales

Terrain proposé par un partenaire foncier selon disponibilités et autorisation de publicité au prix de 15 000 €. Hors droit d'enregistrement et frais de notaire. Maison proposée, avec un contrat de construction de maison individuelle, dans le cadre de la loi du 19/12/1990, au prix de 150 100 € (Hors branchements et raccordements, papiers peints, peintures, revêtement de sol dans les chambres, qui sont chiffrés dans les travaux qui restent à charge du client. Tarif modifiable sans préavis). Étiquette énergie : A. Différents modèles disponibles pour ce terrain. Assurances et garanties du constructeur comprises (RC professionnelle, décennale, dommage ouvrage).

Contactez l'agence de Bourges

02 48 50 26 25

    * Champs obligatoires

    Vos informations sont traitées par HEXAOM et transmises à un conseiller commercial qui vous contactera afin de répondre à votre demande. Les plans et images présentés sur notre site sont la propriété d’HEXAOM et ne peuvent pas être reproduits sans son accord. Pour retrouver notre politique de protection des données personnelles et exercer vos droits conformément à la « loi informatique et liberté » cliquez-ici.