Maison neuve à
Vignoux-sur-Barangeon (18500) Référence : JL2237266_3

Prix du projet : Maison avec Terrain

prix 149 660 €

  • 3 pièces
  • 2 chambres
  • Surface maison 70 m2

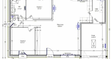
VENTE : maison T3 (70 m²) à Vignoux-sur-Barangeon
IDÉALEMENT SITUÉE - MAISON 3 PIÈCES NEUVE
En vente : située à quelques kilomètres de Bourges, notre agence Maisons Bruno Petit MJB Bourges est ravie de vous proposer cette maison de 3 pièces de plain-pied de 70 m² et de 1 000 m² de terrain idéalement située dans Vignoux-sur-Barangeon (18500). Son intérieur dispose de deux chambres, d'une cuisine et d'une salle de bains.
Cette maison est neuve.
La maison se situe dans un quartier convoité. Il y a des établissements scolaires maternelles et élémentaires à moins de 10 minutes à pied et dont l'École Élémentaire Jean Christophe Rufin. Côté transports, on trouve quatre gares à moins de 10 minutes en voiture. Les autoroutes A71 et A20 sont accessibles à moins de 10 km. Il y a un tennis, deux commerces, une boulangerie et une boucherie-charcuterie dans les environs.
Elle est à vendre pour la somme de 149 660 €.
N'hésitez pas à prendre contact avec notre agence (Jonathan LEBLANC : 02-48-50-26-25) pour toute question sur la maison. Concrétisez vos projets immobiliers avec Maisons Bruno Petit MJB Bourges.

Mentions légales

Terrain proposé par un partenaire foncier selon disponibilités et autorisation de publicité au prix de 28 000 €. Hors droit d'enregistrement et frais de notaire. Maison proposée, avec un contrat de construction de maison individuelle, dans le cadre de la loi du 19/12/1990, au prix de 121 660 € (Hors branchements et raccordements, papiers peints, peintures, revêtement de sol dans les chambres, qui sont chiffrés dans les travaux qui restent à charge du client. Tarif modifiable sans préavis). Étiquette énergie : A. Différents modèles disponibles pour ce terrain. Assurances et garanties du constructeur comprises (RC professionnelle, décennale, dommage ouvrage).

Contactez l'agence de Bourges

02 48 50 26 25

    * Champs obligatoires

    Vos informations sont traitées par HEXAOM et transmises à un conseiller commercial qui vous contactera afin de répondre à votre demande. Les plans et images présentés sur notre site sont la propriété d’HEXAOM et ne peuvent pas être reproduits sans son accord. Pour retrouver notre politique de protection des données personnelles et exercer vos droits conformément à la « loi informatique et liberté » cliquez-ici.