Maison neuve à
Villecerf
(77250) Référence :
CY2281082_1
Prix du projet : Maison avec Terrain
prix 250 000 €
- 5 pièces
- 3 chambres
- Surface maison 90 m2
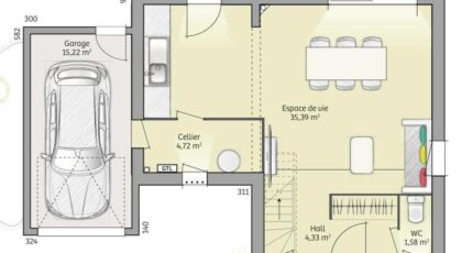
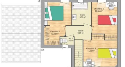
Villecerf : maison de 5 pièces (90 m²) à vendre
MAISON 5 PIÈCES NEUVE - PROCHE DE MELUN
En vente : proche de la gare de Saint-Mammès (Paris à 50 min par le Transilien R), à Villecerf (77250), nous vous présentons cette maison de 5 pièces de 90 m² et de 440 m² de terrain. Son intérieur inclut trois chambres, une cuisine et une salle de bains.
Il s'agit d'une maison de 2 niveaux. Elle est neuve.
Une école primaire est implantée dans le quartier et une crèche. Niveau transports, il y a huit gares à moins de 10 minutes en voiture. On trouve une bibliothèque à proximité.
Elle est à vendre pour la somme de 250 000 €.
Contactez notre agence (Cedric YAHIAOUI : 06-66-57-00-63) pour obtenir de plus amples informations sur la maison, sur les modalités de vente ou sur les démarches à suivre.
Annonce proposée par un Agent Commercial Partenaire.
Mentions légales
Terrain proposé par un partenaire foncier selon disponibilités et autorisation de publicité au prix de 72 000 €. Hors droit d'enregistrement et frais de notaire. Maison proposée, avec un contrat de construction de maison individuelle, dans le cadre de la loi du 19/12/1990, au prix de 178 000 € (Hors branchements et raccordements, papiers peints, peintures, revêtement de sol dans les chambres, qui sont chiffrés dans les travaux qui restent à charge du client. Tarif modifiable sans préavis). Étiquette énergie : A. Différents modèles disponibles pour ce terrain. Assurances et garanties du constructeur comprises (RC professionnelle, décennale, dommage ouvrage).Agence Maisons France Confort de Magny-le-Hongre (77700)
- Téléphone :
- 01 84 80 92 96
- Adressse :
- 11 rue de Courtalin
77700 Magny-le-Hongre, France
