Maison neuve à
Villiers-Saint-Denis
(02310) Référence :
CY2325025_1
Prix du projet : Maison avec Terrain
prix 279 000 €
- 5 pièces
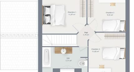
- 3 chambres
- Surface maison 80 m2
VENTE d'une maison T5 (80 m²) à Villiers-Saint-Denis
MAISON 5 PIÈCES NEUVE - PROCHE DE MEAUX
À vendre : au pied de la gare de Nanteuil-Saâcy (Paris à 50 min avec le Transilien P), nous sommes heureux de vous présenter cette maison de 5 pièces de 80 m² et de 1 406 m² de terrain à Villiers-Saint-Denis (02310).
C'est une maison de 2 niveaux. Son intérieur compte trois chambres, une cuisine et une salle de bains. Cette maison est neuve.
Une école primaire est implantée dans le quartier. Niveau transports en commun, on trouve trois gares (Nanteuil-Saâcy, Nogent-l'Artaud-Charly et Chézy-sur-Marne) à moins de 10 minutes en voiture. Il y a un accès à l'autoroute A4 à 9 km et Meaux se situe à 27 km. Il y a un tennis dans les environs.
Il est proposé à l'achat pour 279 000 €.
Contactez notre agence (YAHIAOUI Cedric : 06-66-57-00-63) pour obtenir de plus amples renseignements sur cette maison ou sur les modalités de vente. Maisons France Confort Magny-le-Hongre est là pour vous accompagner dans toutes vos démarches.
Annonce proposée par un Agent Commercial Partenaire.
Mentions légales
Terrain proposé par un partenaire foncier selon disponibilités et autorisation de publicité au prix de 89 900 €. Hors droit d'enregistrement et frais de notaire. Maison proposée, avec un contrat de construction de maison individuelle, dans le cadre de la loi du 19/12/1990, au prix de 189 100 € (Hors branchements et raccordements, papiers peints, peintures, revêtement de sol dans les chambres, qui sont chiffrés dans les travaux qui restent à charge du client. Tarif modifiable sans préavis). Étiquette énergie : A. Différents modèles disponibles pour ce terrain. Assurances et garanties du constructeur comprises (RC professionnelle, décennale, dommage ouvrage).Agence Maisons France Confort de Magny-le-Hongre (77700)
- Téléphone :
- 01 84 80 92 96
- Adressse :
- 11 rue de Courtalin
77700 Magny-le-Hongre, France
