Maison neuve à
Voué
(10150) Référence :
SBVOUE_5
Prix du projet : Maison avec Terrain
prix 226 000 €
- 6 pièces
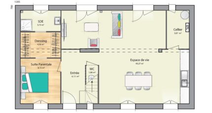
- 4 chambres
- Surface maison 105 m2
Réalisez Votre projet de construction sur la commune de VOUE
En vente à seulement 20 minutes de TROYES, Maisons France Confort vous présente à VOUE cette maison de 6 pièces de 105 m².
Cette maison se compose de 4 chambres, une cuisine 2 salle de bains et un garage. Cette maison est neuve.
Le terrain de la propriété s'étend sur 800 m².
Elle est proposée à l'achat pour 226000 €. Hors frais annexes
N'hésitez pas à prendre contact avec notre agence Sandrine BOUCHOUX : 06-70-88-10-69 pour tout renseignement sur ce projet. Maisons France Confort TROYES est là pour vous accompagner dans tous vos projets immobiliers.
Annonce proposée par un Agent Commercial Partenaire.
Mentions légales
Terrain proposé par un partenaire foncier selon disponibilités et autorisation de publicité au prix de 44 000 €. Hors droit d'enregistrement et frais de notaire. Maison proposée, avec un contrat de construction de maison individuelle, dans le cadre de la loi du 19/12/1990, au prix de 182 000 € (Hors branchements et raccordements, papiers peints, peintures, revêtement de sol dans les chambres, qui sont chiffrés dans les travaux qui restent à charge du client. Tarif modifiable sans préavis). Étiquette énergie : A. Différents modèles disponibles pour ce terrain. Assurances et garanties du constructeur comprises (RC professionnelle, décennale, dommage ouvrage).Agence Maisons France Confort de Troyes (10000)
- Téléphone :
- 03 25 82 69 80
- Adressse :
- 142 Avenue Pierre Brossolette
10000 Troyes, France
