Maison neuve à
Vouhé (17700) Référence : JH2295175_3

Prix du projet : Maison avec Terrain

prix 204 678 €

  • 5 pièces
  • 3 chambres
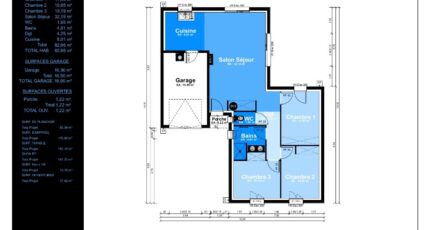
  • Surface maison 82 m2

Vouhé : maison 82 m² + GARGE en vente
MAISON NEUVE RE 2020
Conçue de plain-pied, elle inclut trois chambres, une cuisine et une salle de bains + un garage.
Le terrain du bien est de 352 m².
On trouve l'École Élémentaire Vouhé à moins de 10 minutes à pied. Niveau transports en commun, il y a la gare Surgères à moins de 10 minutes en voiture. On trouve un accès à la nationale N11 à 8 km. On trouve un tennis et une boulangerie à quelques minutes de la maison.
Elle est proposée à l'achat pour 204 678 €.
Contactez notre agence (Julie HOLDRY : O7-77-88-33-95) pour toute information sur la maison, sur les démarches à suivre ou sur les modalités de vente. Maisons Acco La Jarne vous accompagne à toutes les étapes de votre projet et dans tous vos projets immobiliers.

Mentions légales

Terrain proposé par un partenaire foncier selon disponibilités et autorisation de publicité au prix de 48 928 €. Hors droit d'enregistrement et frais de notaire. Maison proposée, avec un contrat de construction de maison individuelle, dans le cadre de la loi du 19/12/1990, au prix de 155 750 € (Hors branchements et raccordements, papiers peints, peintures, revêtement de sol dans les chambres, qui sont chiffrés dans les travaux qui restent à charge du client. Tarif modifiable sans préavis). Étiquette énergie : A. Différents modèles disponibles pour ce terrain. Assurances et garanties du constructeur comprises (RC professionnelle, décennale, dommage ouvrage).

Contactez l'agence de La Jarne

05 46 01 50 50

    * Champs obligatoires

    Vos informations sont traitées par HEXAOM et transmises à un conseiller commercial qui vous contactera afin de répondre à votre demande. Les plans et images présentés sur notre site sont la propriété d’HEXAOM et ne peuvent pas être reproduits sans son accord. Pour retrouver notre politique de protection des données personnelles et exercer vos droits conformément à la « loi informatique et liberté » cliquez-ici.