Maison neuve à
Magescq
(40140) Référence :
RA2447624
Prix du projet : Maison avec Terrain
prix 340 000 €
- 5 pièces
- 3 chambres
- Surface maison 107 m2
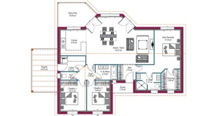
Robin ARZUR des maisons MCA vous propose d'adapter le modèle Lumière, sur ce beau terrain d'environ 500m², situé sur la commune de Magescq, à seulement quelques minutes des plages landaises.
Cette maison contemporaine est composée d'un vaste salon prolongé par une cuisine ouverte, vous profiterez donc d'un espace de vie de plus de 45m². Grâce aux nombreuses baies vitrées, le séjour est très lumineux et donne directement sur le jardin et la terrasse couverte.
Elle dispose également d'un espace nuit composé de deux chambres et une salle de bains, et à l'écart, une grande suite parentale de plus de 25 m², composée d'un dressing et d'une salle d'eau indépendante.
Vous serez séduits par le grand et lumineux espace de vie, et la suite parentale indépendante.
Le prix affiché comprend le terrain, les frais de notaire, les frais annexes (taxes, raccordements, bornage), et cette maison livrée prête à décorer.
Pour plus d'informations contactez notre conseiller Robin ARZUR à l'agence MCA Soustons, afin d'établir avec lui votre projet de construction personnalisé.
Mentions légales
Idée de réalisation en modèle prêt à décorer sur l'un de nos terrains partenaires, sous réserve de disponibilités. Voir détails en agence.Agence Maisons de la Côte Atlantique de Peyrehorade (40300)
- Téléphone :
- 05 35 37 18 58
- Adressse :
- 239 rue du Château
40300 Peyrehorade, France
